Prodej - dům/vila, 152 m²
Prodej novostavby rodinného domu 5+kk, 120 m² ve výstavbě - Česká Kamenice
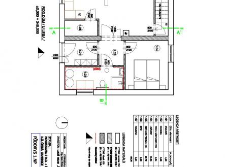
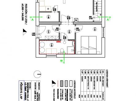
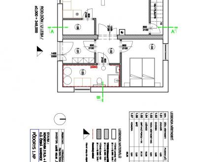
Prodej novostavby rodinného domu – Česká Kamenice Představujeme vám jedinečnou příležitost ke koupi moderní novostavby samostatně stojícího rodinného domu v klidné části České Kamenice. Nemovitost se nachází na atraktivním okraji obce – v bezprostřední blízkosti přírody a zároveň s výbornou dostupností do centra města. Výstavba právě probíhá, plánované dokončení a kolaudace jsou stanoveny na 30. 4. 2026. Bezpečný model financování Prodávající garantuje kompletní dostavbu domu včetně terénních úprav a oplocení, a to dle schváleného projektu a přiložené vizualizace. Kupní cenu hradíte až po dokončení stavby a kolaudaci. Ve fázi výstavby je splatná pouze záloha ve výši 5 % z kupní ceny, a to na základě rezervační smlouvy a smlouvy o smlouvě budoucí kupní. První ze dvou domů je již rezervován. Nyní máte možnost zakoupit druhý – za zvýhodněných podmínek. Základní parametry domu Dispozice: 5+kk Zastavěná plocha: 76 m² Užitná plocha: cca 120 m² Pozemek: cca 850 m² Vytápění: tepelné čerpadlo, podlahové topení Energetická náročnost: třída B – velmi úsporná (dle PENB) Střecha: sedlová, betonová taška Zdivo: tvárnice Porfix Okna: plastová s izolačním trojsklem Podlahy: vinylová krytina Dispozice a standardy Každý dům nabízí: Prostorný obývací pokoj s kuchyňským koutem Tři ložnice Pracovnu Koupelnu Samostatné WC Technickou místnost Zpevněnou plochu pro parkování dvou vozidel před domem Dokončení proběhne ve vysokém standardu s důrazem na nízké provozní náklady, moderní technologie a funkční dispoziční řešení. Výhody této nabídky Krásná a klidná lokalita vhodná pro rodinný život Moderní nízkoenergetický dům Možnost ovlivnit finální podobu interiéru během výstavby Výborná občanská vybavenost v docházkové vzdálenosti Bezpečný model financování – platba až po kolaudaci Dokumentace a financování K nahlédnutí je připravena kompletní projektová dokumentace. Zájemcům rádi poskytneme také podmínky zvýhodněného financování při koupi ve fázi výstavby. Pro více informací a domluvení schůzky nás neváhejte kontaktovat.

