Prodej - dům/vila, 130 m²
Prodej rodinného domu 130 m², pozemek 214 m² Červené Pečky, Kolín
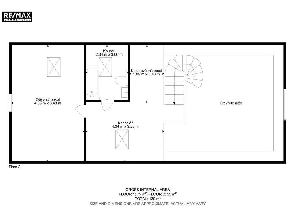
Exkluzivně nabízím k prodeji částečně zařízený nadstandardně řešený rodinný dům s dispozičním řešením 3 + kk s galerií a šatnou o celkové podlahové ploše 130 m2, který je umístěn na pozemku o velikosti 154 m2 a nachází se v žádané lokalitě obce Červené Pečky, okres Kolín. Součástí nemovitosti je dále pozemek o velikosti 60 m2, který je z druhé strany komunikace a slouží jako parkovací stání. V přízemí domu, který prošel kompletní přestavbou, ukončenou v roce 2021, se nachází obývací pokoj s kuchyňským koutem, pokoj, šatna, chodba a koupelna. První patro se skládá z galerie, jejíž součástí je pracovna, dále je zde pokoj a koupelna. Dům je v nadstandardním provedení, podlahy vinyl, střecha z pálených tašek Bramac, zateplení, okna plastová trojskla, elektrické topení, v 1.NP podlahové, ve 2.NP radiátory, k dispozici veškeré inženýrské sítě, přípojka na plyn u domu. Červené Pečky jsou městys ležící v okrese Kolín mezi městy Kolín a Kutná Hora asi šest kilometrů jižně od Kolína, výhodné vlakové spoje s Prahou do 30 minut. Při rychlém jednání možná sleva a případně lze jednat i o výměně za menší byt v Praze. Přijďte se podívat na Váš nový domov, nebudete litovat a ještě pro dokreslení upozorňuji na on-line prohlídku, která je součástí nabídky.


