Prodej - dům/vila, 237 m²
Prodej dům Rodinný, 237㎡|Ústecký kraj, Litoměřice, Černěves, 40, 41301
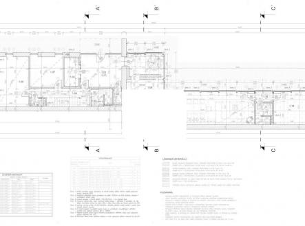
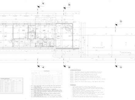
Rodinný dům z roku 2022 Vám bude dělat radost už při samotné prohlídce. Současní majitelé si jej vybudoval od samotného projektu a dal si záležet na kvalitě, designu i na všech detailech. Tento dvoupodlažní dům s 237m2 obytné plochy Vám nabídne opravdu dostatek místa, komfortu a rodinné pohody. Ložnice, pokoje pro děti, pracovna, pokoje pro hosty, opravdu velký obývací pokoj s jídelnou a s na míru vestavěnou a vybavenou kuchyní a k tomu 3 koupelny, 4 toalety a šatny = velký dům i pro velkou rodinu, ze kterého se už nikdy nebudete chtít nebo muset stěhovat. Pozemek, na kterém byl dům postaven má 1094m2. Kromě zastavěné plochy domu se na pozemku nachází ještě stodola (150m2), kde byla započatá rekonstrukce a oceníte ji jako další prostor např. pro vybudování studia, herny, skladovacích prostor - to už záleží na Vás. No a nesmí chybět samozřejmě zahrada, ta je tak akorát a se svými cca 660m2 nabízí dostatek místa na posezení, grilování, bazén a třeba i hřiště pro děti. To vše se nachází nedaleko Roudnice nad Labem, v hezké obci Černěves. Dům je navíc umístěn velmi "strategicky". Kousek od úřadu, autobusové zastávky, kostela ,cyklostezky a v letních měsících se Vám bude líbit blízkost Labe (300m). Navíc do Prahy je to cca 50minut. Protože i interiér domu navrhovala designerka a vše prostě tak nějak skvěle ladí, je možné se s majiteli dohodnout i na přenechání některého vybavení, které by Vám vyhovovalo. Jen namátkou zmíním např. kuchyňský sporák Rangemaster, krb značky Romotop, jídelní stůl z masivu, podlahy z broušeného betonu. Technicky je dům kromě plynu napojen na všechny inženýrské sítě. Podlahové vytápění v celém domě a ohřev vody zajišťuje tepelné čerpadlo Buderus. Pro zalévání je k dispozici studna popř. retenční nádrž. Náklady na provoz byly do současné doby nastaveny takto: voda 1.200,- / měsíc, elektřina 10.000,- / měsíc, plyn - slouží jen k vaření a jsou používány plynové bomby. Internet a televize jsou řešeny přes O2. Dům je napojen na bezpečnostní systém Jablotron a určitě nebude od věci i dálkově ovládaná brána od vjezdu na pozemek. K dodělání je již jen parkovací stání, případné detaily na zahradě a budete-li se chtít "vyřádit", stále je Vám k dispozici stodola. Víc asi není nutné v tuto chvíli dodávat, v klidu se podívejte na video, projděte si dům ve virtuální prohlídce a vůbec nejlepší bude, když mi zavoláte a domluvíme se na osobní prohlídce. Rád se Vám budu věnovat.

