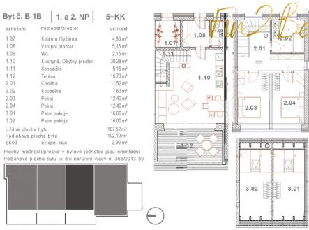
Prodej bytu, 5+kk, 110 m²
Prodej bytu 5+kk, 107m2 s terasou 16m2 , Černá v Pošumaví - Lipno
Investujte do skvělého místa a kupte byt tam, kde ostatní jen sní o dovolené. Představujeme Vám příležitost stát se majitelem moderního dvoupodlažního apartmánu 5+kk s velkou terasou, podkrovím a sklepem v prestižním developerském projektu Apartmány Celnice Lipno. Tato exkluzivní rezidence je zasazená do srdce šumavské přírody v bezprostřední blízkosti největší vodní nádrže v České republice - Lipna nad Vltavou. Pokud hledáte dokonalou kombinaci komfortního bydlení, odpočinku v přírodě a chytré investice do nemovitosti s vysokým turistickým potenciálem, pak je tato nemovitost přesně to, co hledáte. Architektonicky čistý a moderní komplex je navržen tak, aby splynul s okolní krajinou a zároveň nabídl svým obyvatelům maximální komfort a nadstandardní vybavení. Lokalita disponuje naprosto výjimečnou polohou – v létě lákají okolní lesy, cyklostezky a blízký přístup k vodám Lipna na koupání, vodní sporty a aktivní trávení volného času. V zimě se celá oblast proměňuje v oblíbené lyžařské středisko s výbornými podmínkami pro sjezdové i běžecké lyžování. Lipno je prostě destinací pro celý rok, kde je krásné trávit volný čas. Do Rakouska dojdete doslova pěšky, jelikož hranice je pouhých 500m a do lyžařského střediska dojedete za 15minut autem. Stavba je stavěna s citem pro detail, má nízkou energetickou náročnost a využívá moderní technologie. Budovy jsou vytápěny tepelnými čerpadly a ve standardu je v bytových jednotkách podlahové vytápění. V galerii najdete vizualizace pro lepší představu dispozice a vybavení na míru s jehož podobou a realizací vám v případě zájmu pomohou naši designéři, včetně vypracování cenové nabídky. Je zde pouhých 20 apartmánů od dispozice 2+kk do 5kk, včetně možnosti zakoupení dvou apartmánů s předzahrádkou. Zakoupit můžete také parkovací místa a to: garážové stání pod domem, venkovní stání nebo venkovní kryté stání. Neváhejte, zavolejte a přijďte na prohlídku. Těšíme se na vás a pro první klienty máme unikátní nabídku v rámci financování, která vás potěší.


