Prodej - dům/vila, 200 m²
Dům 6+2 k bydlení i komerci s výhledem na Lipno, Černá v Pošumaví
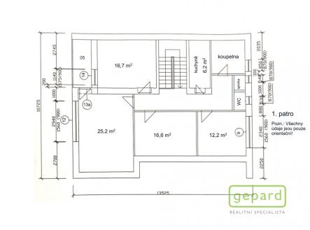
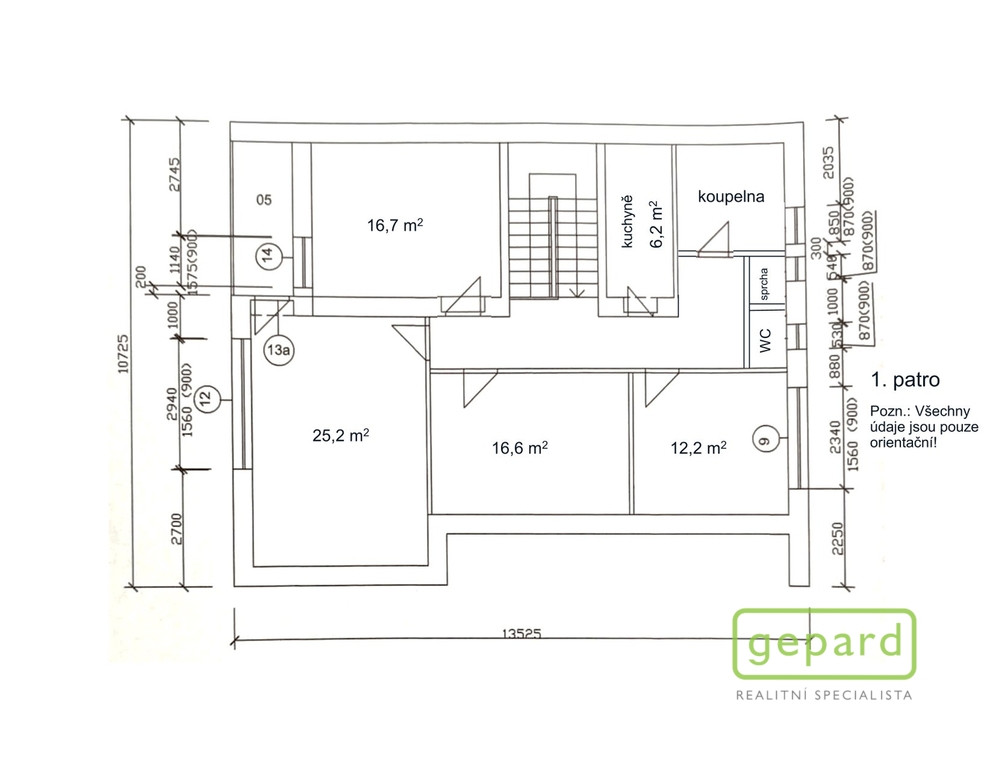
Investice na Lipně. Prodej velkého třípodlažního domu se dvěma bytovými jednotkami nad Lipnem, v klidné obci Mokrá u Černé v Pošumaví, Lipno, Lipensko. Lokalita vhodná i ke komerčnímu využití, docházková vzdálenost k vodě. Celková plocha prodávaných pozemků má výměru 1.309m2, přičemž zastavěná ploch a nádvoří je 182m2 a pozemky, zahrada, okolo o ploše 1.127m2. Budova samotná se skládá ze dvou samostatných velkých bytových jednotek, sklepa s garáží a prostorného podkroví. V 1.NP je byt se dvěma pokoji, kuchyní s jídelním koutem a sociálním zařízením. Výstupem po schodišti se dostaneme do 2.NP kde se nachází větší bytová jednotka sestávající ze 4 pokojů, kuchyně a sociálního zařízení. V obou patrech je k dispozici balkon a v přízemním pak i prosluněná terasa orientovaná jižním směrem. Suterénní část je tvořena prostornou garáží, technickým zázemím domu, skladovacími prostory hernou pro děti. Prostorné podkroví je vhodné jak k vestavbě tak jako další úložný a skladovací prostor. Na dům navazuje v zadní části i pergola s posezením a výhledem do zahrady. Prohlídněte si prosím naší fotogalerii. Nemovitost je vhodná jak k trvalému bydlení, tak svou polohou na Lipensku a v blízkosti lipenské přehrady, i ke komerčním účelům, pronájmu, ubytovacím službám. Vzdálenost do Černé v Pošumaví 3km, do Českého Krumlova 20km po kvalitní rychlé komunikaci. V okolí a dojezdové vzdálenosti jsou k dispozici veškeré sportovní a volnočasové areály pro letní i zimní sporty v Lipně nad Vltavou, Frymburku i v Černé v Pošumaví. Energetická třída PENB „G“ je uvedena z formálních důvodů dle zákona č. 103/2015 Sb., po obdržení průkazu energetické náročnosti budovy bude uvedena skutečná hodnota. Více informací na níže uvedeném telefonním čísle, včetně zmíněného geometrického plánu. Prohlídky po předchozí domluvě z kanceláře v Českém Krumlově.


