Prodej - dům/vila, 122 m²
Prodej rodinného domu 5+kk, 122 m², pozemek 1048 m², Cerhonice okres Písek
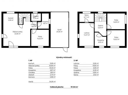
Hledáte dokonalé místo pro klidný rodinný život, kde se snoubí moderní design, kvalitní provedení a harmonické prostředí jihočeské krajiny? Právě pro vás je určena tato zcela nová, prostorná dřevostavba, situovaná v malebné obci Cerhonice. Tato moderní dřevostavba splňuje vysoké standardy současného bydlení – nabízí skvělou tepelnou úspornost, příjemné vnitřní klima a nadčasový design. Dům je kompletně nový a nezařízený, což umožňuje budoucím majitelům vytvořit si interiér přesně podle vlastních představ a životního stylu, jako inspirace slouží vizualizace místností. Dům je koncipován v dispozici 5+kk, obsahuje pět obytných místností, 2 koupelny, spíž plus kuchyň s jídelním prostorem, který je ideálním místem pro rodinné stolování. Obývací pokoj je dostatečně prostorný a díky velkým francouzským oknům je plný denního světla, což prostor činí velmi příjemným. V horním patře jsou 3 světlé pokoje z čehož 1 obsahuje vlastní šatnu. Nemovitost je situována na krásném, slunném pozemku o rozloze 1048 m², jenž poskytuje dostatek prostoru pro rodinný život, volnočasové aktivity i budoucí zahradní úpravy. Dům je postaven z kvalitních materiálů, což zaručuje nízkou energetickou náročnost (energetický štítek C). Je vytápěný tepelným čerpadlem vzduch/vzduch, ohřev vody zajišťuje přímotopy zásobník Ariston Nuos Primo o objemu 200 litrů. V domě je také klimatizace, která může sloužit i jako doplňkový zdroj tepla. Kanalizace je řešena vlastní ČOV. Na pozemku je vrt a uvnitř domu je čistička vody. Cerhonice jsou malebná jihočeská obec obklopená přírodou, která nabízí klidné bydlení mimo ruch města. Zároveň zde najdete veškerou potřebnou občanskou vybavenost v dosahu několika minut jízdy. Pro rodiny s dětmi i milovníky přírody jde o ideální místo. Také dopravní dostupnost je velmi dobrá díky autobusovému spojení a blízkosti větších měst, jako je Písek. Pro ty, kteří hledají klidné a příjemné bydlení v srdci Jihočeského kraje, je tento dům ideální volbou. Relaxe v rozlehlé zahradě, moderní vybavení domu a dostatek prostoru pro život činí z tohoto domova opravdu výjimečnou nabídku na trhu.


