Prodej - dům/vila, 150 m²
RD 5+1 s garáží a sklepem
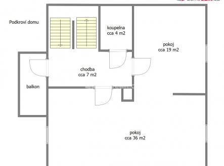
Hledáte klidné bydlení? Nedaleko lesa, města, s dobrou dostupností do Prahy? Tak právě pro Vás mám nabídku na prodej rodinného domu. Dům byl zkolaudovaný v roce 1978. Jeho zastavěná plocha je 100 m². V prvním NP, které je částečně zapuštěné do svahu tvoří technické zázemí domu. Je zde garáž, 5 místností – skladů, plynový kotel, el. bojler a vodárna na studnu, ta je v současné době mimo provoz. V 2.NP se nachází dva pokoje, kuchyně, komora, koupelna a chodba se zádveřím. Je zde umístěn i menší balkon. V 3. NP je možné vybudovat obytné podkroví či další byt. Z chodby v 3.NP je přístupná terasa. V roce 2000 byla kompletně vyměněna střecha včetně krovů, tašky jsou betonové. V roce 2022 byl instalován plynový kotel a ústřední topení. Okna jsou původní. Dům je napojen na veškeré inženýrské sítě, vodu, plyn, elektřinu a kanalizaci. Okolí domu tvoří lesy, obora a pole. Do centra města je to cca 5 min autem. Do centra Prahy cca 40 km. Pro bližší informace volejte makléře. Ev. číslo: 652681.


