Prodej - dům/vila, 127 m²
RD 4+1/137m2 + terasa + jídelna + šatna, pozemek 796 m2. Čerčany, okr. Benešov
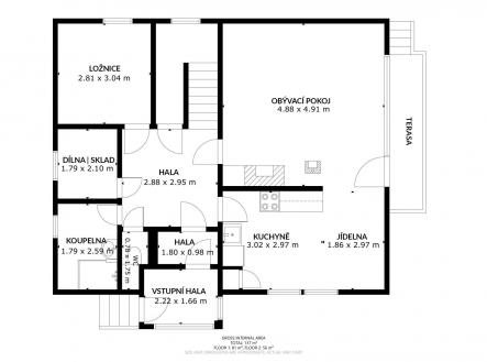
Hledáte klidné bydlení s výbornou dostupností do Prahy, prostorným zázemím a krásnou zahradou? Právě jste ho našli! Rodinný dům 4+1 / 137 m2, se nachází na pozemku o celkové výměře 796 m2 v klidné a vyhledávané části obce Čerčany. Dům je ideálním domovem pro rodinu nebo kohokoli, kdo touží po životě mimo ruch velkoměsta. Dispozice domu Dům má velmi praktické dispoziční řešení, rozložené do dvou nadzemních podlaží: Přízemí (81 m2) zahrnuje prostorný obývací pokoj 24 m2 , na který navazuje jídelní kout a kuchyně 14,5 m2, samostatnou ložnici 8,50 m2, koupelnu, samostatné WC a vstupní halu s chodbami. Praktickou součástí je také menší místnost využitelná jako sklad nebo dílna. V patře (56 m2) se nachází dvě prostorné ložnice 20 m2 a 15 m2, druhé WC, hala a půdní prostor, který lze využít k dalšímu rozšíření obytné plochy nebo jako úložný prostor. Dům je z větší části podsklepený, napojený na obecní vodovod i kanalizaci a připravený k okamžitému nastěhování. Technické informace Typ stavby: montovaná Fasáda: zateplená Okna: plastová výborné termoizolační vlastnosti Vytápění: kombinace přímotopů a vytápění tuhými palivy Stav domu: dobrý, dům je ihned obyvatelný Voda a kanalizace: napojení na obecní řad Elektřina: 230/400 V Orientace: zahrada a terasa orientovány na jihozápad Na pozemku se dále nachází samostatná dílna a kůlna, které nabízí široké možnosti využití ať už pro kutily, skladování sportovního vybavení, nebo jako menší domácí dílna. Zahrada je svažitá, plně oplocená, udržovaná, se vzrostlými stromy a keři. K dispozici je i zpevněná terasa ideální pro letní grilování nebo odpočinek. Lokalita, kterou si zamilujete Čerčany jsou malebnou středočeskou obcí rozkládající se přímo u řeky Sázavy. Okolí je vyhledávané pro rybaření, vodní sporty, turistiku i cykloturistiku. Lesy, louky a říční zákoutí v okolí nabízí nespočet příležitostí k aktivnímu i pasivnímu odpočinku. Obec je zároveň plně občansky vybavená najdete zde např.: Zdravotní středisko a lékárnu Mateřskou i základní školu Obchody, restaurace, kavárny Poštu, knihovnu, kino Výborné vlakové spojení do Prahy každých 30 minut Rychlé napojení na D1 (exit Mirošovice) do Prahy autem cca 25 minut Tento dům je ideální volbou pro rodinu, která hledá prostorné a klidné bydlení v přírodě, a přitom s výbornou dostupností do hlavního města.


