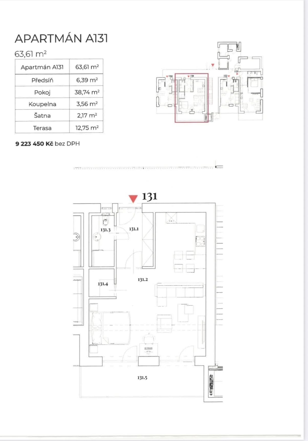
Prodej bytu, 1+kk, 63 m²
Čeladná 249, apartmá 131
Proměňte své finance v hotelový apartmán, který vám vydělává každý den. Investiční apartmá v Mövenpick Resort & Apartments Čeladná přináší pasivní příjem, růst hodnoty nemovitosti a 20 dní osobního pobytu ročně. Aparmtány nejsou určeny k bydlení ani soukromému pronájmu. Jedná se o investiční jednotky provozované resortem Mövenpick. Koupíte investiční jednotku, kterou kompletně provozuje resort Mövenpick. Vy získáváte každoroční podíl z výnosu – bez starostí, bez práce, bez správy. Čeladná je malebná vesnice v samém srdci Moravskoslezských Beskyd. Obklopují ji vrcholy Ondřejníku, Smrku, Malé a Velké Stolové a také Lysé hory. Historie obce sahá pravděpodobně do 15. století, první písemná zmínka pochází však až z roku 1581, kdy je uvedena v urbáři hukvaldského panství. Podle pověsti vznikl název obce od slova „čeládka“ – tedy služebnictvo, které docházelo na Hukvaldy. Čeladná 249 je místem s více než stoletou historií, které bylo vždy spojováno s pohostinností, dobrým jídlem a pitím. Původní budova z roku 1908 prošla náročnou rekonstrukcí a v prosinci 2016 byla znovu otevřena. Restaurace a hotel dnes nabízí tradiční českou kuchyni v útulném a příjemném prostředí. Accor patří mezi největší a nejrespektovanější hotelové skupiny na světě. Sdružuje desítky globálních značek – včetně prémiového Mövenpicku – a zajišťuje špičkový provoz, vysokou obsazenost a kvalitní služby milionům hostů po celém světě. Pro investory to znamená profesionální management, mezinárodní standardy a maximální zhodnocení investice.


