Prodej - dům/vila, 184 m²
RD se zahradou, garáží a dílnou v Čáslavi
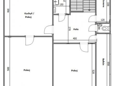
Nabízím dům v naší krásné Čáslavi, vhodný zejména pro větší rodinu, lidi podnikající z domova, či drobného řemeslníka apod. Velký dvoupatrový dům s užitnou plochou 185 m2 disponuje také prostornou garáží a dílnou, což může být pro někoho velké plus. Další výhodou může být možnost rozdělit dům na dvě bytové jednotky, ať už pro investiční využití k pronájmu, či vícegenerační soužití. Ale začněme DOMEM - ten byl přizpůsoben k bydlení dvou rodin, tzn., že po vstupu z verandy najdeme v přízemí halu, prostornou kuchyň s jídelním koutem, dva pokoje, koupelnu, samostatné WC a komoru. A úplně to samé se nachází v prvním patře, jen kuchyňská linka je již odstraněná. Z haly v horním patře je vstup na lodžii. Dům je z poloviny podsklepený a 3 místnosti sestávající z kotelny, skladu a sklepa na ovoce, jsou suché a udržované. Z kuchyně v přízemí se vstupuje na zahradu přes zastřešenou, dlážděnou terasu, která díky své orientaci na jihozápad poskytne příjemnou relaxaci hlavně odpoledne a k večeru. Nemovitost je v původním stavu, napojena na všechny IS, vytápění je zajištěno plynovým kotlem. Voda a kanalizace jsou obecní, na zalévání zahrady je k dispozici studna. A nyní již k ZAHRADĚ - je rovinatá, opečovávaná a osázená ovocnými stromy. Její velikost o výměre 274 m2 je tak akorát na využití pro odpočinek i na údržbu. Ze dvou stran je odstíněna od sousedů vlastní vedlejší stavbou a garážemi od sousedního objektu, které ovšem zahradu nijak nestíní. A poslední k popisu je GARÁŽ - tento samostatný objekt ukrývá garáž s výměrou 19 a dílnu s 15 m2. Oba prostory jsou ve výborném stavu, se zavedenou elektřinou. Na rekonstrukci lze využít dotační program Zelená úsporám. Nemovitost se nachází blízko centra města, kousek od vlakového i autobusového nádraží, prostě vše co potřebujete, ať už jsou to školy, školky, obchody, doprava, je na dosah ruky v pěší vzdálenosti.

