Prodej - dům/vila, 165 m²
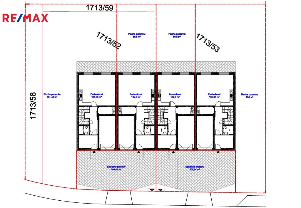
Novostavba ŘRD s garáží a terasou, užitná plocha 165 m2, pozemek 245 m2, Buštěhrad.
- POSLEDNÍ 2 VOLNÉ PROSTŘEDNÍ BYTOVÉ JEDNOTKY - Nabízíme Vám nízkoenergetickou, zděnou novostavbu řadového rodinného dvojdomu se dvěma bytovými jednotkami. Každá bytová jednotka má dispozici 5+kk s garáží, terasou a půdou. Vnitřní užitná plocha bytové jednotky činí bez půdy 165 m2, výměra pozemku 245 m2. Klidné místo navazující na stávající zástavbu rodinných domů v Buštěhradu. Výstavba probíhá v rámci již III. etapy úspěšného projektu Buštěhrad - Za Humny. Nyní máte možnost výběru dekorů finálních povrchů (dlažba, vinyl, odklady) a interiérových dveří dle Vašich představ v rámci určených standardů. Vše je již zahrnuto v kupní ceně. Dispozice: 1. NP: garáž, zádveří, koupelna s WC, chodba, technická místnost, komora, obývací pokoj s kuchyňským koutem a přímým vstupem na terasu. 2. NP: 4 samostatné pokoje, šatna, koupelna s vanou a sprchovým koutem, samostatné WC, chodba s dostatkem denního světla, které zajišťuje světlovod. Nad 2. NP se dále nachází půda s úložným prostorem. Vybavenost domu: - podlahy v přízemí dlažba, v patře vinyl, - interiérové dveře Sapeli, - keramická dlažba a obklady RAKO, - plastová izolační trojskla se šesti komorovým rámem, - zdivo Porotherm, - zateplení domu polystyrenem greywall, - sekční garážová vrata Hörmann na dálkové ovládání, - střešní krytina betonová taška Bramac Classic, - v oknech stavební připravenost pro montáž předokenních žaluzií, - vytápění domu zajišťuje plynový kotel zn. Buderus, - podlahové topení v celém domě s prostorovým termostatem, - v koupelně bude instalovaný otopný žebřík, - rekuperačním větráním systému Lunos, - ve všech oknech je příprava na instalaci předokenních žaluzií na dálkové ovládání a modulem pro ovládání přes mobilní telefon, - příprava na instalaci klimatizace, - příprava na fotovoltaiku, - v sanitě jsou zastoupené značky Hansgrohe, Ravak, Geberit, Kolo,... Inženýrské sítě: voda, kanalizace, elektřina a plyn. Energetická náročnost B - velmi úsporná. Parkování v garáži + 2 parkovací místa před domem. Město Buštěhrad nabízí velmi dobrou občanskou vybavenost (školka, základní škola, základní umělecká škola, lékař, pošta, restaurace, supermarket, fotbalový oddíl SK Buštěhrad, Sokol, Junák). Výborná dopravní dostupnost do Kladna 4 km, Praha 14 km. Možnost financování hypoteční úvěrem, který Vám v případě zájmu pomůžeme vyřídit v rámci našich služeb. Těším se na Vás při prohlídce. Přijďte si vybrat váš nový domov. Poznámka: některé fotografie interiéru jsou použité z již dokončené II. etapy výstavby pro Vaši představu, v jaké standardu budou domy dokončené.

