Prodej - dům/vila, 268 m²
Rozestavěný rodinný dům Bujesily, okr. Rokycany
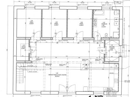
Nabízíme ke koupi rozestavěný rodinný dům v klidné lokalitě obce Bujesily, vzdálené 20 km severně od Rokycan a 15 km jihovýchodně od Kralovic. Dům o zastavěné ploše 193 m2 má v současné době pouze základovou desku, obvodové zdi a není zastřešený. Celková plocha pozemku činí 939 m2, dům je plánován jako přízemní (161 m2) s obytným podkrovím (107 m2). Odpad je plánován do ČOV, nutno vybudovat vrt. Přístup je vyřešen věcným břemenem přes pozemek jiného vlastníka. Prodej včetně projektové dokumentace a materiálu na stavbu.


