Prodej - dům/vila, 100 m²
Prodej Rodinný dům, 100㎡
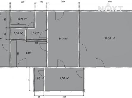
Nabízíme Vám ke koupi rodinný dům dispozičně řešený jako 2+1 na okraji obce Budčeves. Rodinný dům stojí na rovinatém pozemku o celkové výměře 1 142 m2 a je určen k celkové rekonstrukci nebo demolici. Na pozemek jsou zavedeny nově inženýrské sítě – elektrosloupek, vodovodní a kanalizační šachta. Jedná se o dobře dopravně dostupnou lokalitu - Jičín, Nymburk, Poděbrady či Nový Bydžov, Praha – Černý Most cca 50 minut. Veškerá občanská vybavenost je v nedalekém Kopidlně (3 km). Pro více informací či rezervaci termínu prohlídky kontaktujte makléře. S vyřízením hypotečního úvěru rádi pomohou naši specialisté. Pro komunikaci uvádějte evidenční číslo zakázky N114054.


