Prodej - pozemek pro bydlení, 858 m²
Prodej RD 188 m² se stavebním pozemkem, Brumovice
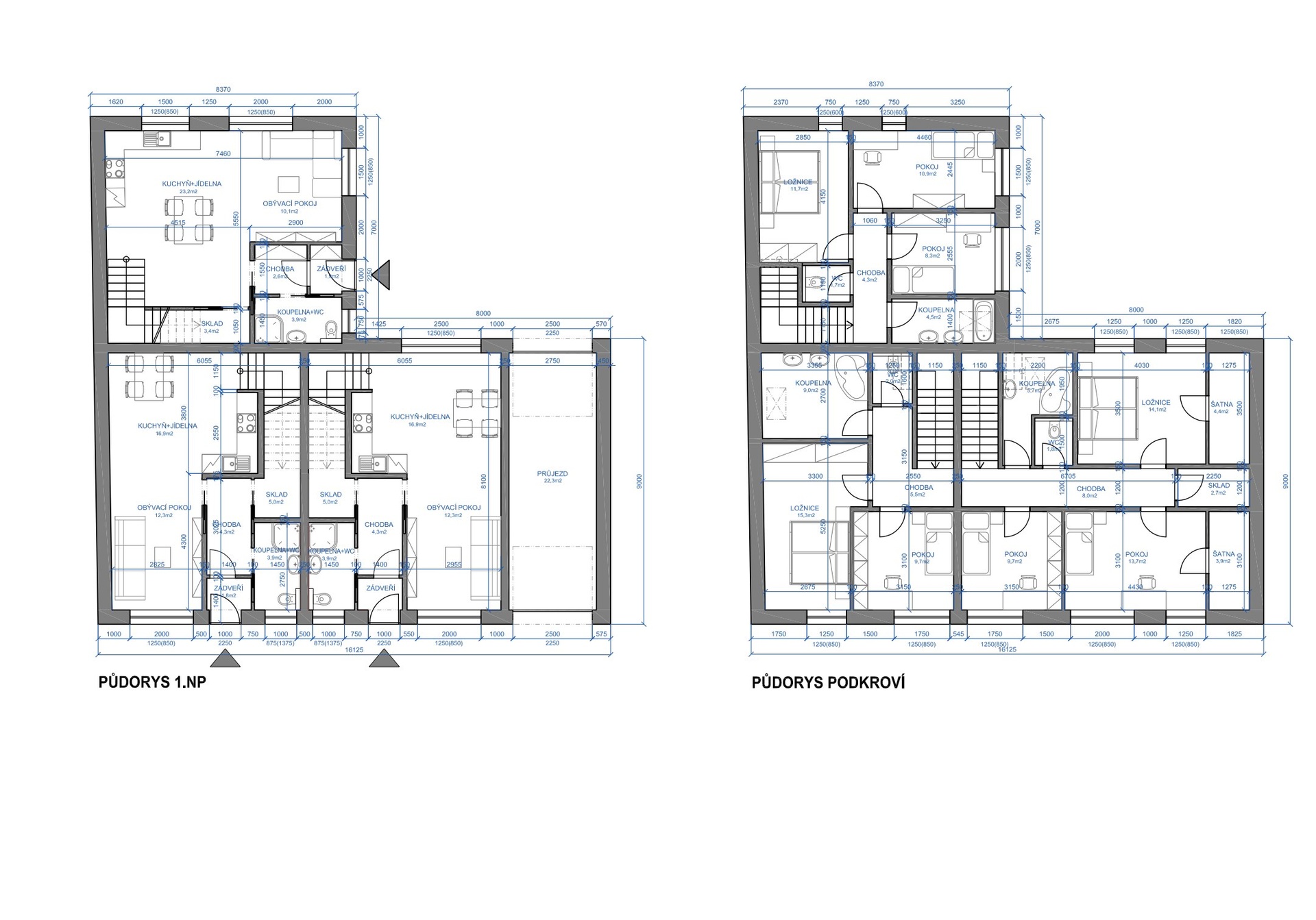
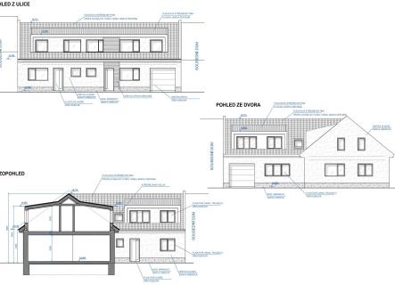
Ve výhradním zastoupení majitele nabízíme k prodeji rodinný dům v obci Brumovice, určený k kompletní rekonstrukci nebo demolici a následné nové výstavbě. Součástí prodeje je studie na přestavbu objektu na tři bytové jednotky a samostatný rodinný dům v zadní části zahrady, což dává nemovitosti velký investiční potenciál. Pozemek má navíc přístup i ze zadní části, a to po obecním pozemku, což výrazně usnadňuje případné rozdělení a samostatné využití zadní části parcely. Za zahradou je dle územního plánu plánovaná nová lokalita pro výstavbu. Celková plocha pozemku činí 858m2 a uliční šíře je 16 metrů. Všechny inženýrské sítě (voda, elektřina, plyn, kanalizace) jsou k dispozici jak u domu, tak i v zadní části pozemku. Brumovice se nacházejí v atraktivní vinařské oblasti a nabízejí výborné možnosti turistiky a cykloturistiky v malebném okolí. V případě zájmu o tuto nemovitost kontaktujte makléře.

