Prodej bytu, 3+kk, 83 m²
Prodej bytu 3+kk, 60 m², Brodek u Konice
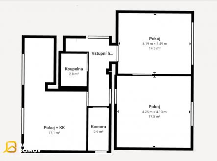
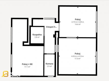
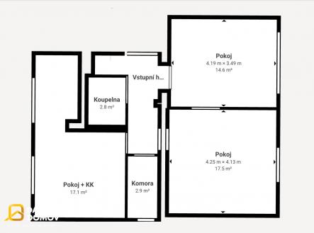
Světlý byt 3+kk, 60 m² s balkónem – ideální k rekonstrukci podle vlastních představ Nabízíme ke koupi světlý byt 3+kk o ploše 60 m² s balkónem, umístěný v 1. patře menšího bytového domu se čtyřmi jednotkami. Byt je v původním, udržovaném stavu a je ideální pro ty, kteří hledají možnost vytvořit si domov přesně podle svých představ – je určen ke kompletní rekonstrukci. Byt je v osobním vlastnictví a jeho součástí jsou také dva prostorné sklepy, které poskytují dostatek úložného prostoru. K bytu je navíc zajištěno parkování pro dvě vozidla před domem, což zaručuje komfortní a bezproblémové parkování i pro vícečlennou domácnost. V současnosti je byt vytápěný krbovými kamny, avšak do bytu je zaveden plyn a k dispozici je původní plynový kotel, který je možné znovu zprovoznit podle preferencí nového majitele. Dům se nachází v klidné části obce, na jejím okraji, v prostředí s dostatkem zeleně a minimálním provozem. K domu je možné využívat zahrádku, která nabízí příjemné posezení nebo prostor pro pěstování. Tento byt představuje skvělou příležitost pro vlastní bydlení i investici – vhodný pro rodinu, pár či jednotlivce, kteří hledají klid, prostor a možnost přizpůsobit si interiér podle svého vkusu. Zavolejte si na prohlídku, těším se na Vás, Silvie Skotková & dáme domov.


