Pronájem - výrobní prostor, 1 067 m²
Pronájem výrobních prostor 1 067 m², Brno
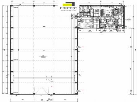
Pronájem výrobních prostor se zázemím v Brně Líšni. V zastoupení majitele a bez provize nabízíme výrobní prostory umístěně v nově vznikajícím výrobně - logistickém parku v Brně. - k nastěhování Q4/2026 - výrobní hala o půdorysné ploše 1067 m² - instalované patky na mostový jeřáb o nosnosti 5 tun - světlá výška 10 m, pojezdová dráha je ve výšce 8 metrů - bezprašné podlahy s nosností 5t/m² - 1x Drive IN pro možnost vjezdu nákladních aut do haly - všechny IS k dispozici - Dostatečný příkon elektřiny - kanceláře, showroom a sociální zázemí o celkové velikosti až 480 m² - vhodné jako sídlo společnosti - 20 parkovacích míst před halou - výborná dostupnost pro osobní i nákladní dopravu - dálnice D1 cca 3km - MHD a občanská vybavenost je v docházkové vzdálenosti cca. 360 m Cena je individuální dle konkrétních podmínek smlouvy. Pro více informací nás kontaktujte.


