Pronájem - kanceláře, 120 m²
Pronájem moderní kanceláře 120 m² na ulici Klíčová v Brně
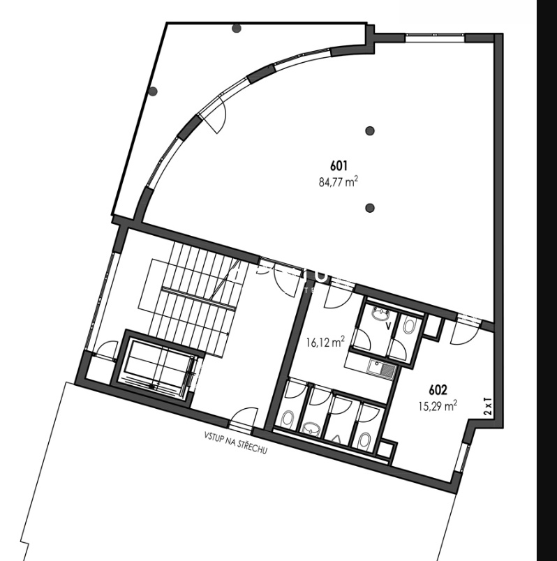
Nabízíme k pronájmu kanceláře v 6.NP administrativního objektu na ulici Klíčová o ploše 120 m². Prostory s terasou jsou vybaveny klimatizací, mají otevíratelná okna, v budově jsou výtahy, zabezpečovací systém, zátěžové koberce, v celé budově je bezbariérový přístup. Je zde možnost parkování na vyhrazeném parkovišti za objektem a v garáži. Budova se nachází v blízkosti centra Brna (2-3 zastávky tramvají), nedaleko objektu jsou zastávky MHD Tržní (3 minuty chůze) a Životského (5 minut chůze). Na nedaleké ulici Křenová se nachází několik restaurací české i mezinárodní kuchyně a další obchody a služby. Rádi pro Vás připravíme nabídku kancelářských prostor na míru v Brně. Máme přístup k neveřejným nabídkám.


