Pronájem bytu, 3+kk, 73 m²
Pronájem mezonetového bytu 3+kk, Brno, ul. Řeznická
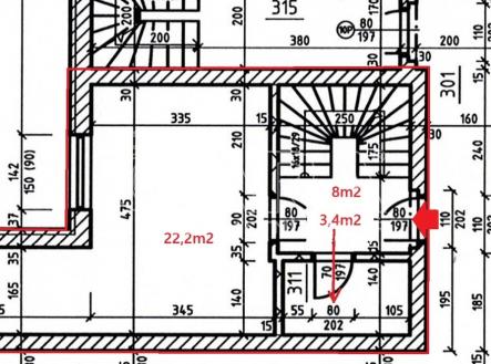
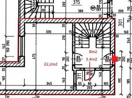
Nabízíme k pronájmu atypický mezonetový byt o velikosti 3+kk, nacházející se na ulici Řeznická, v části obce Trnitá v Brně. Tento jedinečný byt s celkovou plochou 65 m² se nachází ve třetím a čtvrtém nadzemní podlaží cihlového domu. Dispozice: 3.NP: obývací pokoj s kuchyňským koutem 22,2 m2, předsíň 8 m2, koupelna se sprchovým koutem 3,4 m2 4.NP: pokoj 10,2 m2, pokoj 8,8 m2, koupelna s vanou 5.6 m2 chodba 7,6 m2 Velkou devizou bytu jsou dvě koupelny - jedna se sprchovým koutem, druhá s vanou. Byt se nabízí, kromě kuchyňské linky s vestavěnými spotřebiči, nezařízená nábytkem. V bytě je k dispozici plynový kotel pro vytápění a elektrický bojler na ohřev vody. Dům je ve velmi dobrém stavu a je vybaven výtahem. K nemovitosti náleží také jedno parkovací místo, které je k dispozici za 1 000 Kč měsíčně. Okolí je dobře dostupné díky MHD, což zajišťuje snadný přístup do dalších částí města. V blízkosti se nachází veškerá občanská vybavenost, což naplňuje potřeby moderního bydlení. Vhodné pro max 4 osoby.


