Pronájem bytu, 3+1, 104 m²
Pronájem bytu 3+1, 104 m2, ul. Zelný trh, Brno-střed
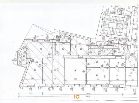
Nabízíme k pronájmu byt 3+1 o celkové rozloze 103,9 m2 ve 3. patře domu na rohu ulic Masarykova/Zelný trh, v historickém centru Brna. Byt má jednu místnost předsíně, ze které se vstupuje do místnosti chodby, a dále do místnosti kuchyně (dříve dvě místnosti v půdorysu označené 24 a 26, nyní spojené v jednu velkou místnost kuchyně), kdy z místnosti kuchyně je vstup i do místnosti komory označené v půdorysu 25. Byt má dále tři samostatné pokoje (dva s okny do ulice Masarykova a jeden s okny do dvora), dále místnost koupelny, kde je vana a WC, a dále i ještě jednu samostatnou místnost s dalším WC, do které se vstupuje z předsíně. Před necelým rokem byl na náklady cca 100.000,- Kč v bytě nainstalován nový úsporný plynový kotel, a to včetně vyvložkování komínu. Součástí bytu je sice i malý balkon do dvora, který ale již několik let není možné z bezpečnostních důvodů užívat, takže tento není předmětem nájmu. V kuchyni je stávající kuchyňská linka se samostatně stojícím kombinovaným sporákem a digestoří. Další spotřebiče v bytě, jako je pračka a lednice, jsou movitým majetkem nájemce. Povinností nájemce je uzavřít si smlouvu s dodavatelem el. energie a smlouvu s dodavatelem plynu k zajištění dodávek těchto energií, což představuje dohodnout se se stávajícím nájemcem na přepisu těchto energií. Byt bude volný od 1.2.2026, eventuálně po dohodě se stávajícím nájemcem i k dřívějšímu datu. Smlouva o nájmu bytu na dobu určitou (dvou let) s automatickou prolongací vždy o další jeden rok. Měsíční nájemné 22.900,- Kč, měsíční zálohy za služby a energie (vyjma el. energie a plynu) 600,- Kč/měsíc/osoba včetně DPH, provize RK 1x nájemné + DPH. Ve věci prohlídky nás neváhejte kontaktovat.


