Pronájem bytu, 2+1, 58 m²
Pronájem bytu 2+1, Jasanová, Jundrov, 22.500 Kč/měs, 58 m2
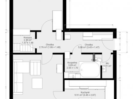
K dlouhodobému podnájmu nabízíme luxusní byt o dispozici 2+1, v oblíbené lokalitě Brno - Jundrov, na ulici Jasanová. Byt o celkové výměře 58 m2 se nachází v prvním patře bytového domu. Byt je vybavený dle fotografií. Prostorná moderní kuchyňská linka je vybavena sporákem, troubou, myčkou, lednicí, digestoří. a mikrovlnnou troubou. Součástí kuchyně je i jídelní stůl s židlemi. Obývací pokoj je zařízen prostornou sedačkou, knihovnou a psacím stolem. Ložnice disponuje pouze šatní skříní, jinak zůstává bez vybavení. V koupelně nalezneme vanu a umyvadlo se skříňkou. Toaleta je oddělena. Velkou výhodou bytu je i oddělená šatna. Lokalita poskytuje spoustu možností, jak trávit volný čas v přírodě, zároveň nabízí veškerou občanskou vybavenost a výborné spojení do centra města Brna. V lokalitě nalezneme restaurace, koupaliště, supermarket, posilovnu, hřiště, lékárnu, školu apod. Zastávka MHD se nachází pár minut chůze od domu. Byt je volný ihned. Pokud Vás nabídka zaujala, neváhejte se ozvat, co nejdříve!


