Prodej - dům/vila, 296 m²
Prodej vícegeneračního domu se 2 bytovými jednotkami a zahradou v klidné ulici v Novém Lískovci
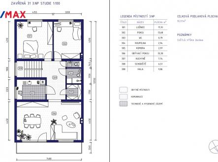
Hledáte dům, kde může pohodlně žít celá rodina, nebo plánujete investici do dvou samostatných bytových jednotek? Tento prostorný rodinný dům se dvěma samostatnými byty, zahradou a garáží nabízí jedinečné spojení soukromí, komfortu a možnosti flexibilního využití – ať už na bydlení, pronájem nebo podnikání. Dům je rozdělen na 2 samostatné bytové jednotky s vlastními měřidly plynu, elektřiny a podružnými vodoměry. Do bytů v přízemí se vstupuje z ulice v úrovni 2.NP, kde se nachází vstupní hala, vstupní dveře do obou bytů, garáže i komory. Dispozice domu: Výměra 1.NP včetně příslušenství 104,57 m2, výměra 2.NP včetně příslušenství 95,51 m2, výměra 3.NP včetně příslušenství 95,97 m2. Společná část domu pro oba byty: Zádveří 2,07 m2 a předsíň 7,48 m2. Byt v přízemí 4+1 (na 2 patra, v půdorysech 1.NP a 2.NP) Hala 8,89 m2, schodiště (dolů do 1.NP) 6.98 m2, kuchyň 7,74 m2, obývací pokoj 33,3 m2, komora 2,97 m2, koupelna 2,94 m2, WC 1 m2, balkón 9,28 m2, hala ve spodní části bytu 9,94 m2, komora 4,20 m2, pracovna 7,74 m2, ložnice 19,44 m2, pokoj 13,27 m2, komora/šatna 2,97 m2, koupelna s vanou 2,94 m2, WC 1 m2. Technické zázemí pro přízemní byt 4+1: Prádelna 11,25 m2 (vana, prostor pro umístění pračka a sušičky, plynový kotel pro vytápění celého bytu), chodba 1,93 m2 a 4x sklep (7,17 m2, 11,73 m2, 6,37 m2, 4,62 m2). K bytu v přízemí 4+1 se nyní používá garáž/dílna v domě o velikosti 10,38 m2. Byt v patře 3+1 (v půdorysech jako 3.NP) Schodiště 6,51 m2, hala 9,86 m2, kuchyň 7,74 m2, obývací pokoj 33,30 m2, komora 2,97 m2, koupelna 2,94 m2, WC 0,79 m2, pokoj 13,68 m2, ložnice 17,91 m2. K bytu 3+1 v patře je v souvislosti se stávajícím pronájmem přiřazena garáž se vstupem ze společné chodby nebo garážovými vraty z ulice o výměře 11,7 m2. Technické informace: - Dům z roku 1983, v dobrém technickém stavu - Elektroinstalace a rozvody vody po rekonstrukci (cca před 8 lety), plyn k vytápění a vaření - Plastová okna – dvojskla, na čelní straně domu je instalován zateplovací systém 15 cm včetně nové fasády, realizace v roce 2018. - Střecha pultová, krytina plechová pozinkovaná, pravidelně udržovaná, poslední nátěr a kontrola před 4 lety. - Stavební konstrukce zděná - keramické tvarovky. - Stropy betonové, nosná konstrukce systém Hurdis. Tato lokalita nabízí klidné prostředí zasazené do zeleně, a přitom plnou občanskou vybavenost – školky, školy, obchody, MHD i sport. Nový Lískovec je díky tomu vhodný pro rodiny, lidí toužící po vyváženém životním stylu a pohodlném přístupu ke všemu potřebnému. Tato nabídka je jako stvořená pro ty, kteří hledají flexibilitu, prostor a stabilní zázemí. Zavolejte mi pro více informací nebo si rovnou domluvte prohlídku. Ráda vás provedu a zodpovím vše, co vás zajímá.


