Prodej - dům/vila, 220 m²
Prodej řadového třípodlažního rodinného domu s předzahrádkou a zahradou v ulici Klíny v Brně Židenic
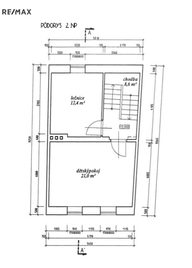
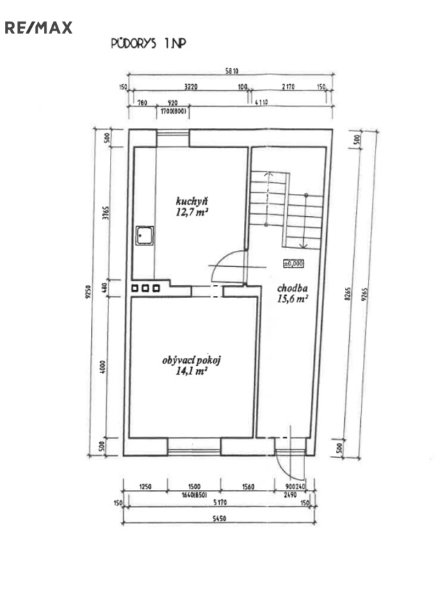
K prodeji nabízíme udržovaný rodinný dům v ulici Klíny se zahradou a parkováním na vlastním pozemku před domem. Dům má čtyři podlaží spojená vnitřním schodištěm. Současný majitel jej v průběhu užívání částečně rekonstruoval a vystavěl v podkroví další obytnou část. Dům o celkové podlahové ploše cca 220 m² je situován na pozemku o výměře 286 m² (z toho zahrada 170 m²) a je napojen na veškeré inženýrské sítě. Dům má pět obytných místností, kuchyni, dvě koupelny a sklep. Navazující zahrada ve vnitrobloku rodinných domů je oplocená, její součástí je dvůr s pergolou a posezením a zahradní domek. Zahrada je částečně travnatá s okrasnými prvky a částečně využívaná jako užitková se záhony. Do domu se vstupuje z předzahrádky hlavní chodbou v přízemí, na kterou navazuje schodiště spojující všechna podlaží, chodbou je možné rovněž vstoupit na zahradu domu. Součástí vstupního přízemí domu (1. NP) je: - kuchyně orientovaná do dvora a zahrady& spíž, součástí je kuchyňská linka s vestavnými spotřebiči - obývací pokoj orientovaný do předzahrádky s kachlovými kamny - vstupní chodba s možností průchodu na zahradu a do dalších podlaží domu V patře domu (2. NP) jsou dva pokoje: - velký pokoj orientovaný do ulice západním směrem, pokoj má vestavěné skříně, - ložnice s vestavěnými skříněmi orientovaná východním směrem do vnitrobloku, - v mezipatře u schodiště je koupelna se sprchovým koutem a WC. V podkroví domu (3. NP) je jeho nejnovější obytná část: - dva propojené neoddělené pokoje s vestavnými skříněmi, pokoje jsou orientované do ulice i zahrady V suterénu domu (1. PP) se nachází: - technická místnost – sklep - velká koupelna s rohovou vanou, místem pro pračku, v koupelně je rovněž kondenzační kotel se zásobníkem na teplou vodu, který vytápí celý dům, - malý odvětrávaný sklep sloužící ke skladování ovoce a zeleniny, fungující rovněž jako vinný sklípek, - u schodiště do suterénu je umístěno samostatné WC. Technické informace: Dům je zděný, fasáda zateplená, objekt má plastová okna a vstupní dveře, v domě je elektroinstalace v mědi, byly provedeny nové izolace proti vodě, dům nejeví známky vlhkosti. Schodiště dřevěné, dvouramenné. Vestavba do střechy včetně nové střechy provedena a kolaudována v roce 2012. Vytápění a ohřev vody zajišťuje plynový kondenzační kotel Thermona se zásobníkem na teplou vodu umístěný v suterénu. Výměry: Zastavěná plocha domu: 55 m². Celková podlahová plocha: 220 m². Pozemek: zastavěná plocha a nádvoří 116 m², zahrada 170 m². Dům je vhodný pro rodinné bydlení, je ihned obyvatelný, udržovaný a připravený na nového majitele. Na domě nevázne žádné zástavní právo, koupi je možné financovat hypotečním úvěrem. Pro více informací a prohlídky nemovitosti nás kontaktujte.


