Prodej bytu, 2+kk, 47 m²
Prodej prostorného bytu 2+kk - Rezidence Krokus
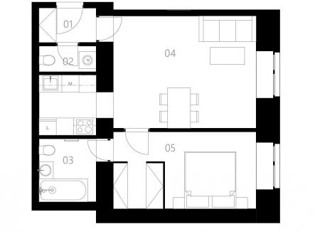
Nabízíme prostorný byt 2+kk v novém rezidenčním projektu Rezidence Krokus, situovaném v klidné a zavedené lokalitě městské části Brno-Židenice. Bytový dům je navržen s důrazem na praktické dispoziční řešení, dostatek denního světla a energetickou úspornost – spadá do energetické třídy A. Byt je vhodný jak pro vlastní bydlení, tak jako investiční příležitost k pronájmu. V okolí se nachází kompletní občanská vybavenost včetně obchodů, služeb, škol i zastávek MHD. Lokalita zajišťuje rychlé spojení do centra Brna i napojení na dálnice D1 a D2. V případě zájmu o bližší informace nebo prohlídku nás neváhejte kontaktovat. Dispozice bytu: vstupní chodba (2,4 m²), obývací pokoj s kuchyňským koutem (24,4 m²), pokoj (13,5 m²), pokoj (8,6 m²), koupelna (4,4 m²), WC (1,8 m²)


