Prodej bytu, 2+kk, 80 m²
Prodej nebytového prostoru k rekonstrukci 53 m², + terasa 27 m2, Brno - Veveří, ul. Dřevařská
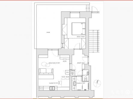
Upozornění - na fotkách je aktuální stav a vedle stav po možné rekonstrukci pro inspiraci Nabízíme Vám možnost skvělé investice. V obzvlášť atraktivní lokalitě v Brně - Veveří se nachází tato nemovitost ke kompletní rekonstrukci s užitnou plochou 53 m². K nemovitosti je i nárok k terase cca 27 m2 přilehající přímo k prostoru. V této chvíli je zapsán na LV jako nebytový prostor a nabízí skvělé možnosti pro vlastní úpravy a přizpůsobení dle vašich představ. Jedná se o nebytový prostor ke kompletní rekonstrukci s možností výstavby ideálně ateliéru, případně bytu, avšak klient si musí sám prověřit . Dům prochází rekonstrukcí, díky které získává nový život a moderní vzhled. V současnosti je jednotka v družstevním vlastnictví, avšak po rekonstrukci domu bude možnost převést do osobního vlastnictví. Jedná se o cihlovou budovu s vysokou odolností a dlouhou životností. Tento prostor nabízí skvělé možnosti pro vlastní úpravy a přizpůsobení dle vašich představ. Díky své poloze a veškeré občanské vybavenosti je to ideální místo pro Vaše záměry. Klient si vyhrazuje právo výběru zájemce
ARTOSS realitní kancelář, s.r.o.


