Prodej - nájemní dům, 915 m²
Prodej činžovního domu 1315 m², Brno-město
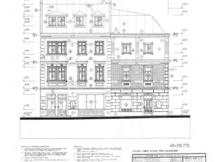
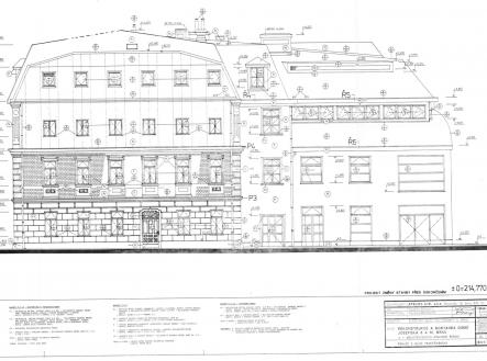
Na základě výhradního zastoupení majitele Vám nabízíme k prodeji obchodní centrum Josefínka v samém centru Brna na nároží ulic Josefská 8, 10 a Františkánská 10. Jedná se o polyfunkční budovu s obchodními a kancelářskými prostory, které jsou dlouhodobě obsazené nájemníky. Výměra pozemku: 358 m2, zastavěná plocha 357,2 m2 Celková užitná plocha: 1 315,16 m2 Plocha k pronájmu: 915,4 m2 Nemovitost má celkem čtyři nadzemní a jedno podzemní podlaží. Obchodní a kancelářské prostory jsou dlouhodobě pronajímány. 1.PP – plocha podlaží celkem: 268,14 m2 - volný prostor – 44 m2 1.NP – plocha podlaží celkem: 283,92 m2 pronajatá plocha: - prodejna gramofonových desek – propojeno s 1.PP – celková výměra 117,4 m2 - zlatnictví – 46,5 m2 - punčochové zboží – 70,79 m2 - aktuálně pronajímaný prostor – (dříve bar) – 41 m2 2.NP – plocha podlaží celkem: 285,58 m2 pronajatá plocha: - outdoorové oblečení – 80 m2 - advokátní kancelář – 143,9 m2 3.NP – plocha podlaží celkem: 265,86 m2 pronajatá plocha: - nezisková organizace – 124,52 m2 - správcovská spol. – 20,46 m2 - jazyková škola – 71 m2 4.NP – plocha podlaží celkem: 211,66 m2 bez půdního prostoru pronajatá plocha: - jazyková škola – 131,85 m2 Každá z pronajatých jednotek má své měření elektrické energie. Vytápění je řešeno centrálními plynovými kotly, které jsou umístěné ve 4.NP. PENB skupiny C Dnešní obchodní centrum vzniklo sloučením dvou řadových domů Josefská 8 a Josefská 10. Dům Josefská 8 byl drobná stavba s klasicistním jádrem a secesní pozdně historizující fasádou z přelomu 19. a 20. století. Dům Josefská 10 s klasicistním průčelím obytného domu s obchodně řemeslnickým přízemím byl předmětem památkové ochrany. Oba domy byly v roce 1996 asanovány a znovu vystaveny včetně dostavby do Římského náměstí. Jejich výsledná podoba byla navržena tak, aby odpovídala regulačním podmínkám dostavby Římského náměstí. Průčelí do ulice Josefské bylo navrženo v zásadě jako replika historické klasicistní fasády, zatímco zadní strana objektu směřující na Římské náměstí kombinuje původní zastavění se soudobými architektonickými prvky. 10 v současnosti tvoří dispozičně a provozně jeden celek využívaný pro obchodní a kancelářské účely, obchodní podlaží jsou v rámci stavby propojena výtahem. Bližší informace Vám rád poskytnu osobně v naší realitní kanceláři či na zavolání.


