Prodej bytu, 3+kk, 177 m²
Prodej bytu 3+kk 80 m², Brno Bystrc
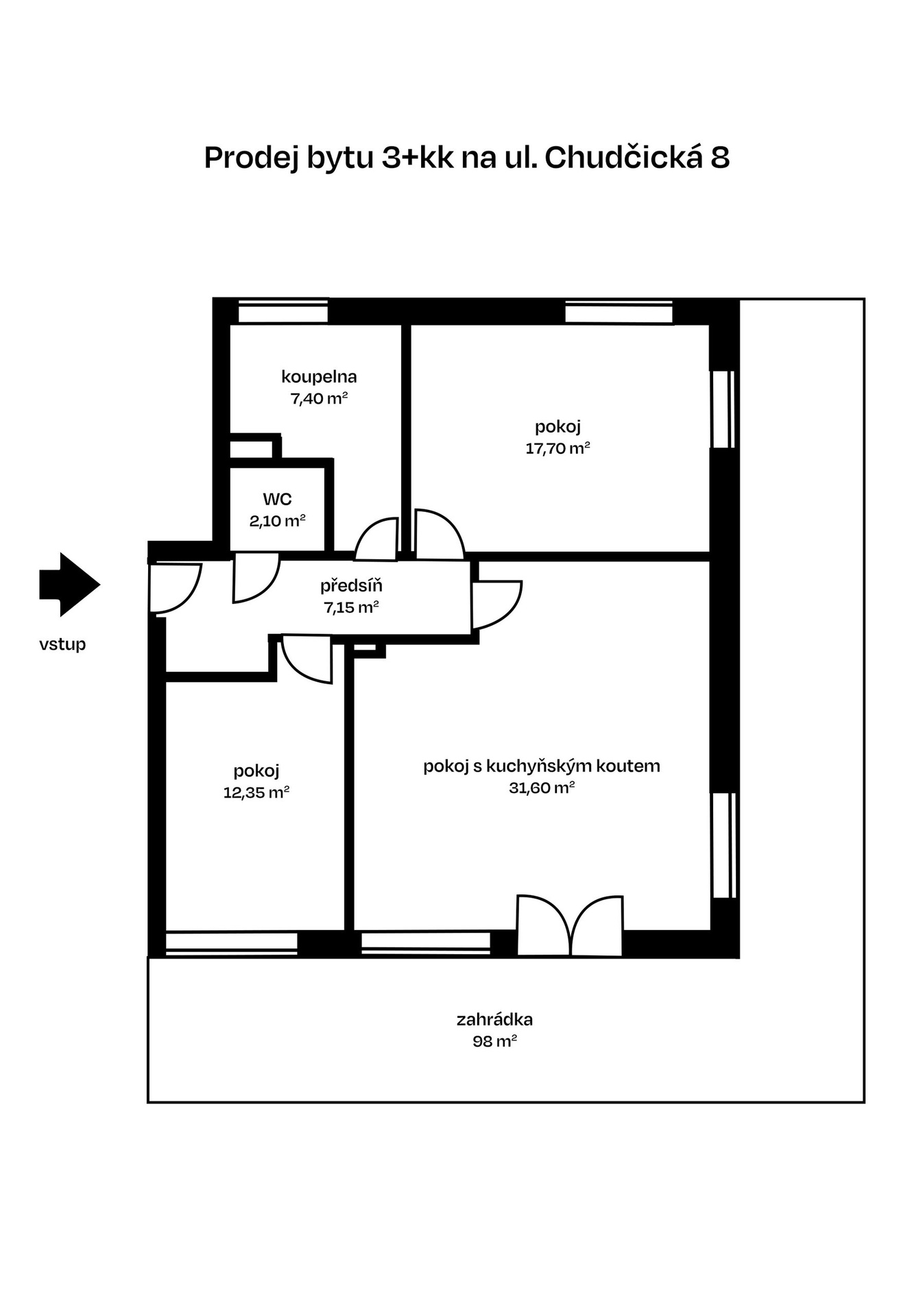
Nabízíme k prodeji moderní přízemní byt 3+kk o celkové výměře 177 m² s bezbariérovým přístupem (včetně venkovního prostoru) v žádané lokalitě Brno–Kamechy, na ulici Chudčická. Byt má příjemnou dispozici, a to díky přímému vstupu z prostorného obývacího pokoje do oploceného venkovního prostoru o velikosti 98 m². Tento soukromý prostor vybízí k realizaci vašich snů o okrasné zahrádce, ve které můžete relaxovat nebo aktivně trávit čas s rodinou. Výhodou je vybudované částečné zastřešení. Samotný byt má 78,3 m², přičemž do každé místnosti je samostatný vstup z předsíně, což zajišťuje soukromí všem obyvatelům bytu. Toaleta je oddělena od koupelny a její součástí je bidet a také umyvadlo se skříňkou. Byt je vytápěn dálkovým zdrojem tepla a celý dům je zařazen do energetické třídy C. K bytu náleží také sklep o výměře 1,25 m² ve společných částech domu. Parkování je možné v okolí domu nebo na přilehlých parkovištích zřízených pro tuto lokalitu. Lokalita Kamechy patří mezi vyhledávané a nejzelenější části města Brna. Nachází se mezi Žebětínem a Bystrcí, v těsné blízkosti brněnské přehrady, která láká k procházkám, sportu i odpočinku. Okolí domu nabízí několik dětských hřišť, přímo u sídliště najdete mateřskou školu, základní škola s velkým sportovním areálem je odtud pouhých 5 minut autobusem. Tento byt je skvělou volbou pro rodiny s dětmi i páry, kteří si chtějí po práci užívat sportovních aktivit nebo procházek.

