Prodej bytu, 3+1, 60 m²
Prodej bytu 3+1 v osobním vlastnictví s balkonem, 60 m2 na ulici Bzenecká v Brně - Židenicích
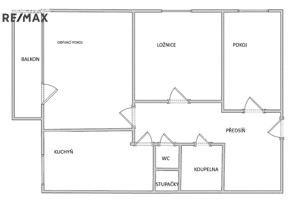
Ve výhradním zastoupení nabízíme k prodeji byt 3+1 v osobním vlastnictví o užitné ploše 60 m2 s prostorným zaskleným balkonem (4,3 m2) a sklepní kójí v panelovém domě se 2 výtahy na ul. Bzenecká v Brně - Židenicích. Byt se nachází v 7NP/12NP a jeho dispozice jsou: kuchyně (7,5 m2), obývací pokoj (16 m2) se vstupem na zasklený balkon (4,3 m2) s výhledem na Brno - jihozápad, ložnice (12 m2), pokoj (8,5 m2), koupelna (2,8 m2), samostatné WC (1 m2), předsíň (4 m2), šatna umístěná v předsíni (2,6 m2), chodba (5,7m). Předsíň a chodba je prostorná a vstupuje se z nich do všech místností bytu - žádné pokoje nejsou průchozí. V bytě je klimatizace, zděné jádro, nová koupelna, plastová okna se žaluziemi, plovoucí podlahy, vinyl, PVC a dlažba. V koupelně a v části kuchyně je nová elektřina. V bytě jsou bezpečnostní vchodové dveře. K bytu náleží sklepní kóje a na chodbě před bytem je společný prostor (na kola). Dům je po revitalizaci, jsou tu 2 výtahy (úvěr na revitalizaci, balkony, střechu bude splacen v roce 2027). Žádné další velké investice se neočekávají. Parkování možné u domu. V budově jsou umístěny kamery se záznamem. Náklady na bydlení jsou velmi nízké: elektřina 800,- Kč a měsíční předpis plateb 4.782,- Kč (studená voda, teplá voda, teplo, po uhrazení úvěru bude snížen i FO). V Brně se nachází veškerá občanská vybavenost, nájezd na dálnici D1, nemocnice, obchody, lékaři, hřiště, ZŠ, MŠ, VŠ, vlakové nádraží, autobusové nádraží, obchodní domy, parky atd. Financování hypotečním úvěrem pro Vás můžeme zajistit. Pro více informací a termín prohlídky kontaktujte makléře nabídky.


