Prodej bytu, 3+1, 81 m²
Prodej bytu 3+1, 74 m² – Brno, Komárov, ulice Za školou
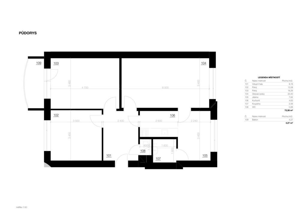
Prodej bytu 3+1, 74 m² – Brno, Komárov, ulice Za školou Ve výhradním zastoupení nabízíme k prodeji prostorný byt o dispozici 3+1 v oblíbené a klidné lokalitě Brno–Komárov, na ulici Za školou. Byt o celkové podlahové ploše 74 m² (plus sklep a balkon) se nachází v posledním, 7. patře panelového domu, což zaručuje krásný výhled a dostatek soukromí bez hluku nad vámi. Dispozice a stav bytu: Byt je velmi prostorný a určený k rekonstrukci podle vašich představ. Celková plocha bytu je 74m (pokoj s balkonem 16m, pokoj 20m, pokoj 12m). Součástí je původní umakartové jádro s koupelnou a samostatnou toaletou. Z centrální chodby je přístup do všech místností – kuchyně, obývacího pokoje a dvou ložnic. Obývací pokoj sousedí s kuchyní a má dva vstupy – z chodby i přímo z kuchyně, což umožňuje praktické propojení obytné části. Z bytu je vstup na balkon orientovaný na severozápad, ideální pro odpočinek při západu slunce. Dům a technické zázemí: Panelový dům je v dobrém technickém stavu, má nový výtah, opravené společné prostory a vstup na čip. Na patře jsou pouze tři byty, což zaručuje klidné a příjemné bydlení. Dům je napojen na centrální městskou teplou vodu. V celém domě se topí plynem a plyn je používám i na vaření - plynový sporák, přičemž plynový měřič se nachází přímo v bytě – v jádře na toaletě. Stejně tak měřiče vody jsou umístěny v bytě, ve stupačkách na toaletě v umakartovém jádře. Tento systém umožňuje snadné odečty a kontrolu spotřeby energií. Možnost dokoupení garáže: K bytu je možné přikoupit také garáž, která se nachází v docházkové vzdálenosti přibližně 1 minutu (cca 100 metrů) od domu. Cena garáže činí 1 390 000 Kč. Ideální příležitost pro ty, kteří hledají pohodlné parkování nebo bezpečné místo pro uskladnění věcí. Lokalita – Brno Komárov: Komárov je vyhledávaná lokalita s výbornou dostupností do centra Brna (MHD cca 3 minuty chůze) a zároveň s množstvím zeleně i občanské vybavenosti. V blízkosti najdete obchody, školu, školku, restaurace, sportoviště i příjemné procházky kolem řeky Svratky. Nedaleko se nachází také OC Olympia, Aquapark Modřice a cyklostezky, které vás zavedou až k přehradě. Dopravní napojení je perfektní – tramvaj, autobus i rychlý nájezd na dálnici D1. Byt je vhodný jak pro rekonstrukci na moderní bydlení, tak i jako investiční příležitost. Díky své poloze, orientaci a technickému zázemí nabízí komfortní a klidné bydlení s výbornou dostupností všech služeb. Cena 7.990.000,- Kč včetně provize RK Lokalita: Brno – Komárov, ul. Za školou Dispozice: 3+1, 74 m² + sklep + balkon Možnost dokoupení garáže (100 m od domu) za 1 390 000 Kč CENA K JEDNÁNÍ. V případě, že Vás nabídka zaujala, neváhejte se kdykoliv ozvat.


