Prodej bytu, 3+1, 66 m²
Prodej bytu 3+1, 66 m², Brno, ul. Dunajská
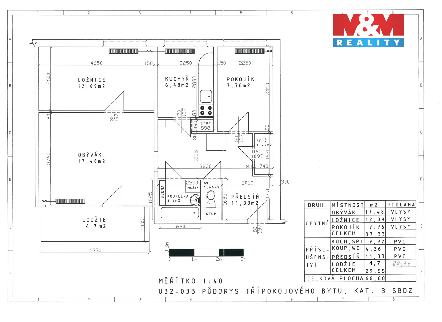
Nabízíme k prodeji byt o dispozici 3+1 se zasklenou lodžií a sklepem, který je umístěný v 5. NP panelového domu s výtahem. Celková plocha bytu činí 66 m², z toho lodžie 4,7 m² a 2 m² sklepní kóje. Byt je v původním stavu, určený ke kompletní rekonstrukci, čímž se novému majiteli otevírá prostor pro úpravu interiéru podle svého vkusu. Dispoziční řešení a orientace: ložnice, kuchyně a pokoj jsou orientovány na sever, obývací pokoj se zasklenou lodžií a klimatizační jednotkou je orientován na jih, v chodbě se nachází spíž, kterou lze přetvořit na praktickou šatnu. Dům je po revitalizaci, s rekonstruovaným výtahem. Okolí nabízí nejen parkovací místa a plnou občanskou vybavenost, ale také dětská a workoutová hřiště. Zastávka MHD 3 min. chůze, 20 min. do centra. Tento byt je vhodný jak pro vlastní bydlení, tak jako investiční příležitost. Zavolejte si pro více informací nebo si rovnou domluvte prohlídku.


