Pronájem bytu, 1+1, 30 m²
Podnájem 1+1 na ulici Václavská
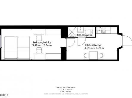
Nabízíme k podnájmu jednotku R1.205 o celkové výměře 29,6 m2, která je k dispozici od 1.1.2026. K dispozici je ve stejném komplexu několik jednotek ve velikosti 1+kk, 2+kk a 2+1 pro 2 až 4 osoby. Jedná se o podnájem kompletně vybavené jednotky o dispozici 1+1 v nově zrekonstruovaném domě. Součástí vybavení kuchyně je plně zařízený kuchyňský kout, včetně lednice, dvou plotýnkové sklokeramické desky, digestoře, dřezu, mikrovlnné trouby a varné konvice. Jednotka je vybavena dvěma pracovními stoly s židlemi, dvěma pohodlnými postelemi a dostatečným prostorem na ukládání oblečení. Koupelna je také plně vybavená, a to sprchovým koutem, záchodem a umyvadlem se zrcadlem. K dispozici je příprava pro připojení vlastní pračky. Benefity pro podnájemníky: internetové připojení v jednotce k dispozici společné prádelny, kde se nachází vždy pračky a sušičky (za poplatek) zvýhodněná cena za parkování 1 690 Kč měsíčně venkovní relax zóna vč. posezení, grilu, pingpongu venkovní posilovna (zdarma) a vnitřní posilovna (placená) nemáme nevrlé sousedy Jednotky se nachází v lukrativní oblasti v bezprostřední blízkosti centra Brna. Samotné centrum Brna je dostupné v pěší vzdálenosti. V těsné blízkosti se nachází jeden z největších dopravních uzlů v Brně – Mendlovo náměstí, které Vám zajistí bezproblémové spojení na brněnské univerzity. V okolí se nachází několik obchodů, restaurací, barů, posiloven a ostatních služeb. Jednotka je vhodná k různým účelům. O aktuální dostupnosti a podmínkách Vás budeme rádi informovat. Rádi se s Vámi setkáme na osobní prohlídce.


