Pronájem - obchodní prostor, 60 m²
Komerční prostor na frekventované Václavské ulici
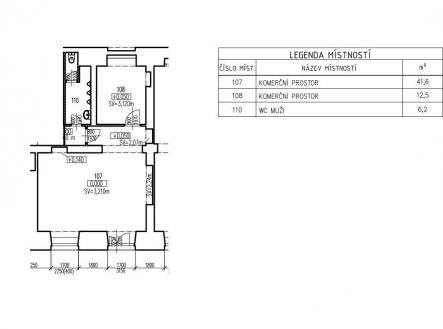
Nabízíme k pronájmu velmi atraktivní obchodní prostor v přízemí budovy o výměře 90 m2 ve velmi frekventovaném areálu na ulici Václavská u hlavního dopravního uzlu Mendlovo náměstí, který je k dispozici ihned. Prostor je vhodný k jakékoliv obchodní činnosti, například na prodejnu, showroom, kavárnu či služby typu manikúra apod. Součástí prostoru je toaleta, prodejní prostor a prostor pro sklad/zázemí. Výhodou jsou velké výkladce, které jsou viditelné z uliční fronty. Skládá se z jednoho otevřeného prostoru, který je možné rozdělit na prodejní/obchodní prostor a zadní skladovací část. Dále prostor nabízí oddělenou kancelář a druhý vchod. V prostoru je k dispozici menší prostor pro zázemí a tři toalety. Dále je zde možnost pronájmu vyhrazeného místa přímo před prodejnou vhodného například pro zahrádku. Parkování je možné přímo u prostoru. Nabízíme také možnost pronájmu dlouhodobého vjezdu do areálu nebo možnost umístění reklamy přímo k tramvajové zastávce Václavská (mimo jiné, zastávky tramvají číslo 1 a 2) či přímo na budovu. Dále se v bezprostřední blízkosti nachází různorodé prodejny a výdejny eshopů, provozovatelé volnočasových aktivit jako je fitness centrum BigOne, pingpongová herna, karate apod. Dále se zde nachází cca 400 bytových jednotek, jejichž obyvatelé využívají služeb nabízených v jejich blízkosti. Neváhejte využít této zajímavé příležitosti a kontaktujte nás pro vice informací.


