Prodej bytu, 4+kk, 114 m²
Exkluzivní byt 4kk
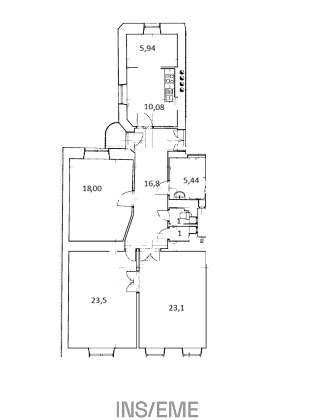
Na ulici Körnerova, v blízkosti centra Brna, nabízím k prodeji výjimečně prostorný byt o rozloze 114 m², umístěný ve druhém patře pečlivě udržovaného domu. Interiér okamžitě zaujme svou vzdušností – vysoké stropy, velkorysé místnosti a elegantní dispoziční řešení vytvářejí atmosféru, která se v dnešní zástavbě jen těžko hledá. Dvě ložnice, obývací pokoj a oddělená kuchyně poskytují promyšlený prostor. Byt je plně vybavený a díky dlouhodobé, pečlivé údržbě působí velmi zachovale a upraveně. Samostatné WC oddělené od koupelny zvyšuje každodenní komfort a obyvatelům domu je k dispozici také klidný soukromý dvůr – příjemné místo k odpočinku, které poskytuje vítané soukromí uprostřed městského prostředí. Součástí prodeje je rovněž podíl na nebytovém prostoru, jenž je dlouhodobě pronajímán. Aktuálně má budova energetický štítek třídy G. V domě je však v plánu oprava fasády, která po dokončení přinese výrazné zlepšení – energetická náročnost se posune na třídu E. Nemovitost bude k nastěhování po koupi jiné nemovitosti. Lokalita nabízí snadnou dostupnost do centra města i kompletní občanskou vybavenost v docházkové vzdálenosti, což zajišťuje praktické a pohodlné bydlení. Tento byt představuje ideální volbu pro ty, kteří hledají nadstandardně prostorný, elegantně působící domov. V případě zájmu o prohlídku či jakékoliv doplňující informace mě neváhejte kontaktovat.


