Prodej bytu, 3+1, 66 m²
Byt 3+1 s lodžií a skvělým potenciálem - určený k rekonstrukci
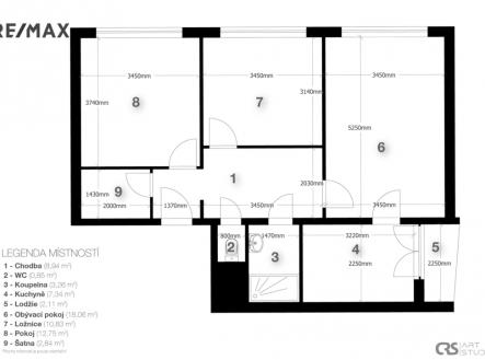
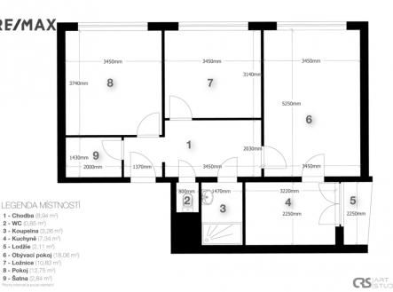
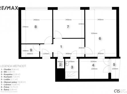
Nabízím k prodeji byt o dispozici 3+1 s lodžií a sklepem, o celkové užitné ploše 66 m². Byt je určen ke kompletní rekonstrukci, což dává novému majiteli ideální příležitost upravit si bydlení přesně podle vlastních představ. Fotografie v inzerci jsou vizualizace, které znázorňují možnou podobu bytu po rekonstrukci. Dispozičně je byt řešen tak, že se zde nacházejí dva samostatné pokoje a jeden pokoj je průchozí do kuchyně. Tuto dispozici je však možné jednoduše upravit vybudováním sádrokartonové příčky a vytvořit tak tři neprůchozí pokoje. Kuchyň je samostatná, koupelna je aktuálně průchozí z chodby i z kuchyně, přičemž zazděním průchodu z kuchyně lze získat plně neprůchozí koupelnu. Toaleta je oddělená. Součástí bytu je také praktická šatna a lodžie, která poskytuje příjemný prostor k odpočinku. Byt se nachází v 11. nadzemním patře z celkových 13 nadzemních pater v bytovém domě s výtahem. Přístup do bytu je bezbariérový. K bytu náleží sklepní kóje. Dům je zateplený, byt je osazen plastovými okny. V roce 2025 byla v domě vybudována nová vlastní tepelná kotelna, což přispívá k efektivnějšímu a úspornějšímu vytápění. Velkou výhodou je výborná dopravní dostupnost – v blízkosti domu se nachází několik tramvajových linek, které zajišťují rychlé spojení do centra města, kam se dostanete přibližně za 10 minut. Pěšky je centrum města dostupné zhruba do 30 minut. Lokalita zároveň nabízí rychlé napojení na dálnici D1 a D2. V bezprostředním okolí je veškerá občanská vybavenost – obchody, školy, školky, zdravotnická zařízení i služby. Byt je vhodný jak pro vlastní bydlení, tak jako investiční příležitost s potenciálem zhodnocení po rekonstrukci.


