Prodej bytu, 1+kk, 32 m²
Byt 1+kk s balkonem - Bytový dům Lido II.
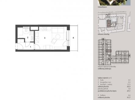
Ve výhradním zastoupení investora nabízíme k prodeji byt s dispozicí 1+kk s balkonem. Velmi pěkný byt vzniká v novém projektu, který navazuje na úspěšnou první etapu. Byt je orientovaný do klidného vnitrobloku a splňuje vysoké nároky na klidné a komfortní bydlení. Koupě bytu je skvělou příležitostí pro startovací bydlení nebo výhodnou investicí. Bytový projekt vzniká v progresivní lokalitě s bohatou kulturní historií a výbornou dostupností do centra města. Jednou z mnoha předností projektu bude uzavřený vnitroblok plný zeleně, kde můžete trávit čas s dětmi nebo jen tak odpočívat. K bytu je možnost přikoupit parkovací stání. Symbiózou nadstandardního zateplení, kvalitních oken, použitých stavebních materiálů a moderních technologií vytápění se podařilo projekt BD LIDO realizovat v energetické třídě A, což znamená mimořádnou úspornost! Dispozice bytu: vstupní chodba (3,5 m²), obývací pokoj s kuchyňským koutem (17,5 m²), koupelna s WC (4,3 m²), balkon (4,6 m²)


