Prodej - dům/vila, 65 m²
Prodej rodinného domu po rekonstrukci, Březinky
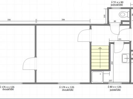
Nabízíme k prodeji tento hezký dvoupodlažní rodinný dům umístěný v klidné obci Březinky. Dům s dobrou dopravní dostupností (Moravská Třebová 18 km, Mohelnice 20 km, Litovel 25 km) je obklopený okolní zástavbou rodinných domů a přírodou. V domě s dispozicí 3+kk naleznete v přízemí obývací místnost s kuchyňským koutem (21 m²), technickou místnost s el. bojlerem (3,2 m²), WC s prostorem pro pračku (4,2 m²). V 2.NP je průchozí místnost (13,5 m²), neprůchozí místnost (13,5 m²), koupelna (4,2 m²) WC (1 m²) a zastřešená terasa (6,8 m²). Dům má především jižní orientaci. Dům, po celkové rekonstrukci z roku 2024, je napojen na obecní vodovod a elektřinu, odpady jsou svedeny do septiku. V celém domě jsou plastová okna. Jedná se o cihlový dům s dřevěnými trámovými stropy. Střecha je sedlová s plechovou pokrývkou. Ohřev tepla je zajištěn tepelným čerpadlem vzduch-voda a ohřev vody el. bojlerem. Podlaha v přízemí je pokryta dlažbou; v 2.NP je laminátová (mimo koupelnu a WC, kde je dlažba). Vnitřní omítky jsou štukové. Zajistíme Vám financování koupě této nemovitosti – bezplatná konzultace s našim finančním poradcem. Bližší informace u makléře nabídky.


