Prodej - dům/vila, 146 m²
Prodej rodinného domu se zahradou, 839 m² Břest
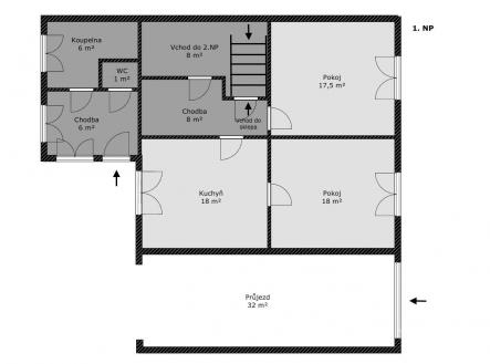
Nabízíme prodej samostatně stojícího rodinného domu se zahradou v obci Břest, vzdálené 6km od Kroměříže. Celková výměra pozemků je 839 m². Současná dispozice domu je 4+1, ale dům přímo vybízí k rekonstrukci a dalšímu rozšíření. Velkorysý půdní prostor nabízí možnost vybudování obytného podkroví a ještě více místa pro pohodlné bydlení. Dům je napojen na elektřinu, obecní vodovod i kanalizaci, s možností připojení plynu. Konstrukce domu je cihlová, osazená plastovými okny a betonovými podlahami, což tvoří ideální základ pro rekonstrukci podle vlastních představ. Součástí je také vlastní studna pro užitkové využití. Na rovinaté, zatravněné zahradě se nachází zděná hospodářská budova, která nabízí široké možnosti využití. V části je zavedena elektřina a obecní voda, část objektu je podsklepená, což poskytuje praktický prostor pro skladování nebo dílnu. Dispozice domu viz přiložený půdorys. Energetický štítek budovy nebyl dosud dodán, proto je v souladu se zákonem uvedena třída energetické náročnosti G.


