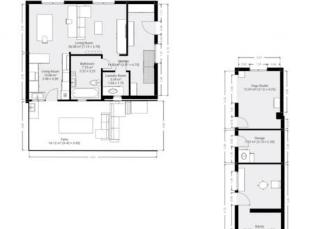
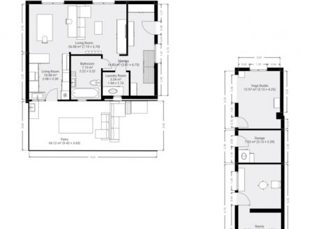
Prodej - dům/vila, 128 m²
Rodinný dům s wellness zázemím, zahradou a garáží ve Staré Boleslavi.
Nabízím vám rodinný dům 5+kk s pozemkem o velikosti 945 m², který vás překvapí svou příjemnou atmosférou, promyšleným dispozičním řešením a velkorysým zázemím. Dům prošel kompletní rekonstrukcí přibližně před 18 lety. Podlahová plocha domu činí 140 m², užitná 128 m². Interiér působí mimořádně útulně, a to i díky množství dřevěných masivních prvků, které prostoru dodává harmonii a teplo domova. Dispozice i členění prostoru umožňuje v případě potřeby rozdělení na dvougenerační bydlení. Součástí domu je velká terasa s krbem. Na zahradě najdete samostatnou vedlejší stavbu – s místností vhodnou pro cvičení jógy, posilování nebo práci z domova, krásnou saunu, samostatnou toaletu, kolárnu a přístřešek na dřevo, garáž s velkým pracovním prostorem a pohodlné parkování přímo na pozemku. Celková užitná plocha domu a vedlejších zmíněných staveb je přes 200 m2. Celý venkovní prostor je upravený, plně zařízený a působí mimořádně příjemně. K dispozici jsou veškeré inženýrské sítě – obecní i studniční voda, elektřina, spádová kanalizace a plyn. Vytápění zajišťuje nový plynový kotel pořízený v roce 2024, v přízemí je podlahové topení, v patře radiátory. Plyn slouží také pro vaření. Velkým plusem je nová kuchyňská linka včetně rozvodů zhotovena před třemi lety. Dřevěná okna, balkón o velikosti 2 × 3 m a sklep uvnitř domu jsou další z praktických detailů, které potěší. Provozní náklady pro čtyřčlennou domácnost (plyn, elektřina, voda, internet) se pohybují kolem 9–10 000 Kč měsíčně. Dvojměstí Brandýs nad Labem - Stará Boleslav se umisťuje dlouhodobě na předních příčkách v indexu kvality života ve městech. Má veškerou občanskou vybavenost na nejvyšší úrovni. Dům má zároveň velmi dobrou strategickou polohu, ať už budete potřebovat do Prahy nebo na druhou stranu do hor, nájezd na dálnici je pouhých pár minut od domu. Lokalita Staré Boleslavi je vyhledávaná díky své historii, atmosféře, blízkosti přírody a zmíněné velmi dobré dostupnosti do Prahy. Prohlídky se budou konat po předchozí telefonické či e-mailové dohodě. Dovolujeme si upozornit, že v případě více vážných zájemců může být nemovitost prodána nejlepší nabídce.

