Prodej bytu, 2+kk, 58 m²
Prodej bytu 2+kk, Brandýs nad Labem Stará Boleslav
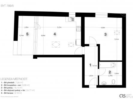
Ve výhradním zastoupení nabízíme k prodeji nadstandardní byt o dispozici 2+kk o užitné ploše 69m2 (byt 58 m² + terasa 9m2 + sklep 3m2), který vzniká v rámci prestižního developerského projektu v bezprostřední blízkosti Staroboleslavské brány. Byt je součástí moderní novostavby s plánovaným dokončením v roce 2026. Součástí nabídky je terasa o velikosti 9 m² a také sklepní prostor 3 m². Byt bude částečně zařízený a jeho dispozice je navržena s maximálním důrazem na pohodlí i funkčnost. Ohřev vody a vytápění bytu je zajištěno moderním tepelným čerpadlem značky NIBE. Projekt spojuje moderní architekturu s respektem k historickému okolí a nabízí tak jedinečnou možnost prémiového bydlení v jedné z nejatraktivnějších částí Brandýsa nad Labem–Staré Boleslavi. Lokalita poskytuje klidné prostředí s atmosférou historického centra a zároveň plnou občanskou vybavenost – školy, restaurace, kulturní památky i snadnou dostupnost do Prahy. Tato nemovitost představuje výjimečnou investici do budoucna při hledání moderního bydlení v exkluzivní lokalitě.


