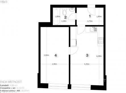
Prodej bytu, 2+kk, 46 m²
Prodej bytu 2+kk, Brandýs nad Labem Stará Boleslav
V zastoupení nabízíme k prodeji nadstandardní byt o dispozici 2+kk o užitné ploše 49 m² (byt 46m2 + sklep 3m2), který vzniká v rámci prestižního developerského projektu v bezprostřední blízkosti Staroboleslavské brány. Byt je součástí moderní novostavby s plánovaným dokončením v roce 2026. Dispozice zahrnuje sklep o výměře 3m². Byt bude částečně zařízený a jeho dispozice je navržena s maximálním důrazem na pohodlí i funkčnost. Ohřev vody a vytápění bytu zajišťuje moderní tepelné čerpadlo značky NIBE. Projekt spojuje moderní architekturu s respektem k historickému okolí a nabízí tak jedinečnou možnost prémiového bydlení v jedné z nejatraktivnějších částí Brandýsa nad Labem–Staré Boleslavi. Lokalita poskytuje klidné prostředí s atmosférou historického centra a zároveň plnou občanskou vybavenost – školy, restaurace, kulturní památky i snadnou dostupnost do Prahy. Tato nemovitost představuje výjimečnou investici do budoucna při hledání moderního bydlení v exkluzivní lokalitě.


