Prodej - dům/vila, 104 m²
Prodej rodinného domu s velkým potenciálem k rekonstrukci – Borkovany, okr. Břeclav
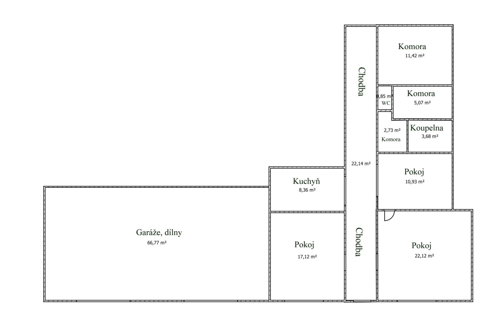
Nabízíme k prodeji rodinný dům určený ke kompletní rekonstrukci, nacházející se v centru obce Borkovany (okres Břeclav), v atraktivní lokalitě jihomoravského venkova s dobrou dostupností do Brna, Hustopečí i Břeclavi. Základní informace o nemovitosti: • Celková plocha pozemku: 852 m² • Zastavěná plocha a nádvoří: 353 m² • Podlahová plocha domu: 171 m² • Užitná plocha obytné části: 104 m² • Zahrada (do mírného svahu): 332 m² Dispozice domu: Rodinný dům má převážně přízemní dispozici s rozsáhlým technickým zázemím a přístavky. Je vhodný pro rekonstrukci dle vlastních představ – ideální jak pro trvalé bydlení, bydlení spojené s podnikáním, tak pro rekreační účely. Vnitřní prostory: • Chodba: 22,14 m² • Pokoj 1: 17,20 m² • Pokoj 2: 22,12 m² • Kuchyně: 8,36 m² • Jídelna: 10,93 m² • Komora: 2,73 m² • Koupelna: 3,68 m² • WC: 0,85 m² • Druhá komora/sklad: 5,07 m² • Letní komora: 11,42 m² Vedlejší stavby a hospodářské části: • Garáže a dílny: 66,77 m² • Chlévy, sýpka a další technické prostory – vhodné pro přestavbu na ateliér, sklad, dílnu nebo hobby prostor. Exteriér a zahrada: Zahrada o ploše 332 m² navazuje na prostorný dvůr, je ve svahu nabízí možnost terasového uspořádání nebo menšího sadu, vinice či okrasné zahrady. Pozemek je oplocený a poskytuje dostatek soukromí. Lokalita – Borkovany: Obec Borkovany leží v mírně zvlněné krajině Jižní Moravy, cca 15 minut autem od Hustopečí a nájezdu na dálnici D2 (Brno – Břeclav). Je zde základní občanská vybavenost – obchod, školka, škola, restaurace, autobusová zastávka, knihovna a kulturní dům. V obci a okolí panuje klidná atmosféra s přírodními scenériemi a vinicemi, ideálními pro pěší výlety a cykloturistiku. Shrnutí: • Rodinný dům s technickým zázemím a hospodářskou částí • Velká zahrada, soukromí, potenciál pro přestavbu • Výborná lokalita pro klidné bydlení nebo chalupaření • Možnost rozdělení prostor i pro podnikání (dílna, sklad) Pro více informací nebo domluvu prohlídky mě neváhejte kontaktovat.


