Prodej bytu, 1+1, 33 m²
Prodej bytu 1+1 33 m², Bojkovice
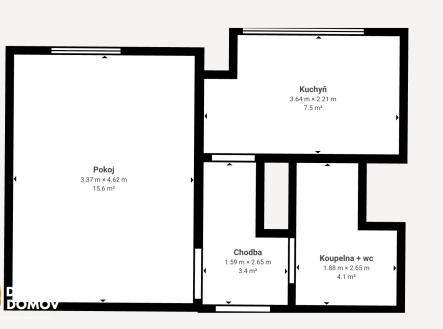
Prodej bytu 1+kk, 33 m², Bojkovice – sídliště Mánesova II. Hledáte moderní a útulné bydlení v klidné části města s výbornou občanskou vybaveností? Nabízíme k prodeji světlý byt v osobním vlastnictví o výměře 33 m² v oblíbené lokalitě sídliště Mánesova v Bojkovicích, kde právě probíhá kompletní revitalizace celého sídliště. Byt se nachází ve 3. patře domu, který prošel kompletní revitalizací – zateplená fasáda, plastová okna a nové lodžie zajišťují komfortní a úsporné bydlení. Samotný byt je po rekonstrukci a připraven k okamžitému nastěhování bez dalších investic: nová elektroinstalace nové kvalitní podlahy Gerflor moderní kuchyňská linka od značky Hanák kvalitní skříně na míru s důrazem na praktičnost krásná lodžie s příjemným výhledem Díky své dispozici je byt ideální jako startovací bydlení, investice k pronájmu nebo jako pohodlné bydlení pro jednotlivce či pár. Klidná a vyhledávaná lokalita nabízí veškerou občanskou vybavenost v dosahu – obchody, služby, zeleň i dobrou dostupnost do centra. Pro více informací nebo sjednání prohlídky mě neváhejte kontaktovat, těším se na Vás, Silvie Skotková & dáme domov.


