Prodej - hotel, 1 199 m²
Prodej zavedeného hotelu s restaurací, Blšany
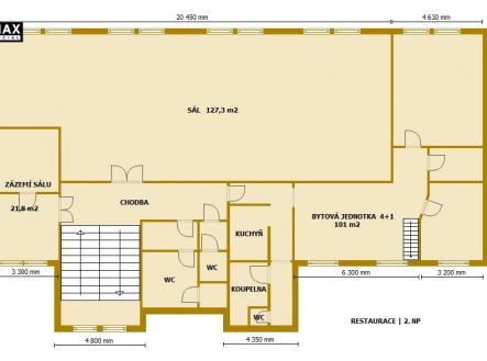
Hotelový a restaurační areál s dlouhodobě fungujícím provozem se nachází přímo na náměstí v Blšanech na hlavní trase I/27 (E53) mezi Žatcem a Plzní. Díky výborné poloze, stabilní a pravidelné klientele a možnosti převzetí bez dalších investic je ideální volbou pro investory. Hlavní přednosti areálu: • Fungující provoz s návratností – hotel i restaurace mají dlouhodobě stabilní klientelu a osvědčený provoz zaměřený na ubytování turistů, firemní klientelu i soukromé akce. • Strategická poloha – umístění přímo na náměstí městečka Blšany, na hlavní silniční trase a v blízkosti dálnice D6. Dojezd do Prahy i Karlových Varů cca 50 minut. • Výborný technický stav – obě budovy jsou ve velmi dobrém stavu a připraveny k okamžitému převzetí a pokračování v provozu. Dispozice a kapacity: Hotelový komplex tvoří dvě propojené budovy – novostavba hotelu (kolaudace 2010) a zrekonstruovaný motorest (rekonstrukce 1996). • Celková plocha pozemku: 1 199 m² • Budova hotelu: 10 pokojů, kapacita 33 lůžek (možnost rozšíření na 45 míst). Všechny pokoje mají vlastní sociální zařízení a odpovídají tříhvězdičkovému standardu. Součástí hotelu je recepce, snídaňová/jednací místnost pro 25 osob, zázemí pro personál, skladovací prostory a kotelna. K budově je napojená zastřešená terasa. • Budova motorestu: restaurace s kapacitou 55 míst, vinárna pro 35 osob a taneční sál až pro 100 hostů. Součástí je kompletně vybavená kuchyně s nerezovými spotřebiči. V budově se dále nachází byt 4+1, mezonetového typu, o výměře 101 m², vhodný pro majitele nebo správce areálu. • Další prostory: uzavřený dvůr s možností parkování. Možnost příjezdu do dvora je jak z hlavní ulice (náměstí), tak z vedlejší ulice. Konstrukce a technické parametry: • Hotel: zděná budova s železobetonovými stropy, plastová okna s izolačním dvojsklem, úsporný provoz díky systému ovládání elektřiny pomocí karet. • Motorest: zděná stavba z roku 1910, kompletní rekonstrukce proběhla v roce 1996. • Vytápění: ústřední plynové vytápění v obou budovách. • Přípojky: veřejný vodovod, kanalizace, elektro, plyn, vlastní studna. • Celkový stav: výborný technický stav, areál je plně připraven k okamžitému provozu. Lokalita: Blšany leží v srdci významné chmelařské oblasti, v blízkosti města Žatec a pivovaru Krušovice. Díky své poloze je hotel vyhledávaným místem nejen pro turisty, ale i firemní klientelu a svatební či společenské akce. V okolí se nachází množství turistických a sportovních aktivit, například bývalý prvoligový fotbalový stadion FK Chmel Blšany, naučné stezky, nový park s dětským hřištěm a cyklostezky. Závěr: Další informace Vám makléř rád sdělí telefonicky, formou samostatné webové stránky nemovitosti nebo při osobní prezentaci na prohlídce.

