Prodej - dům/vila, 282 m²
Prodej vícegeneračního domu 282 m², pozemek 1248m²
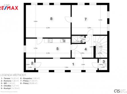
Rodinný dům s potenciálem bytového domu v samotném centru Blatné Hledáte nemovitost s velkým potenciálem a atraktivní lokalitě? Dovolte mi představit Vám rodinný dům o dispozici 7+kk, který se nachází v ulici Strakatého, pouhých 100 metrů od Náměstí Míru v Blatné. Třípodlažní dům (2 nadzemní a 1 podzemní podlaží) je určen ke kompletní rekonstrukci a nabízí mimořádnou příležitost pro investory, developery nebo velkou rodinu. Díky své poloze i vnitřnímu uspořádání je ideální nejen pro bydlení, ale i pro přestavbu na menší bytový dům či kombinaci bydlení a podnikání. Včetně podkroví je zde potenciál vybudovat až 6 plnohodnotných bytových jednotek. Užitná plocha Sklep - cca. 36 m² 1. NP - 100,4 m² 2.NP - 91,6 m² Podkroví - 90 m² Garáže - 100 m² K nemovitosti náleží dvě terasy – jedna v přízemí a druhá v 1. patře – a také prostorný sklep. Na pozemku se poté nachází garáže se zastavěnou plochou 110 m², což nabízí další možnosti využití nebo přestavby. Jednou z hlavních výhod je skutečnost, že pozemek není zastavěn na své maximální možné ploše, čímž otevírá prostor pro rozšíření nebo novou výstavbu dle platného územního plánu. Veškerá občanská vybavenost se nachází ve městě. V blízkých Strakonicích jste za pouhých 25 minut, a v Praze za 55 minut. Plochy místností jsou orientační. Energetický štítek nebyl dodán - zvolena třída G. Pokud hledáte nemovitost v centru města s velkou dávkou potenciálu a flexibility, je tato nabídka přesně pro Vás. Pro více informací mě neváhejte kontaktovat.

