Prodej bytu, 3+1, 102 m²
Prodej bytu 3+1 102 m², Blansko
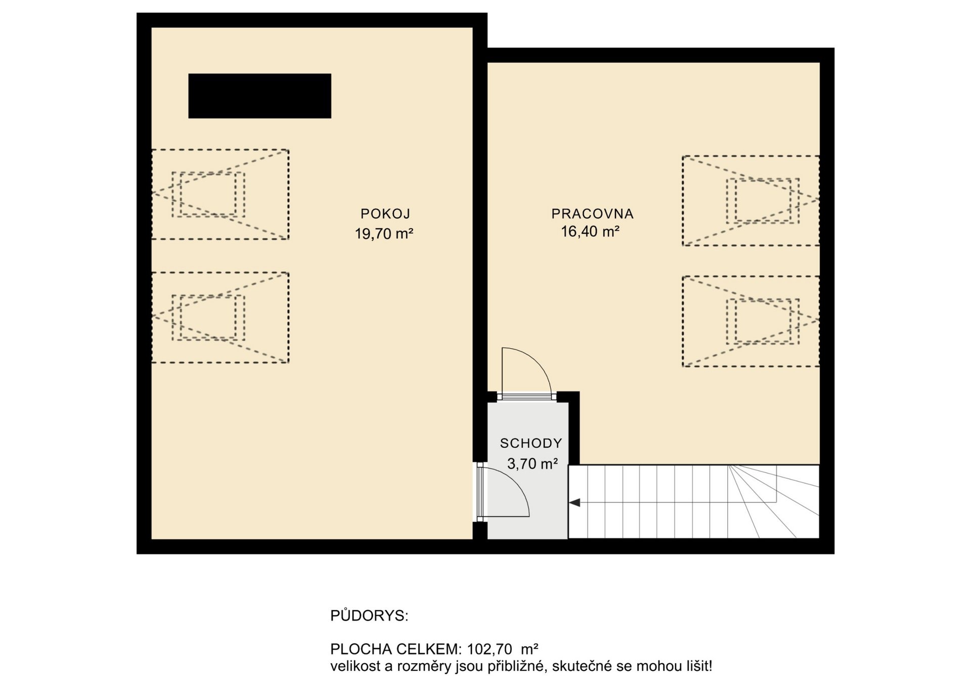
Dnes vám ukážu byt, který zvenku působí docela nenápadně, ale uvnitř má víc prostoru, než byste čekali. Původně šlo o klasickou 2+1 s 56 m², ale v roce 2014 prošel velkou proměnou. Díky přístavbě do podkroví se rozšířil na celkových přibližně 102 m² (dle prohlášení vlastníka) a vznikl z něj atraktivní prostorný mezonet. V podkroví najdete dva samostatné pokoje, ideální třeba jako ložnice a dětský pokoj nebo pracovna. V dolním patře je velký obývací pokoj volně navazující na kuchyní, kde se pohodlně sejde celá rodina. Tenhle byt najdete v ulici Mahenova, v klidné části Blanska, kde je přitom vše na dosah. Jen pár minut chůze odtud máte centrum města, obchody, školu, školku i poštu. Pro ty, kdo dojíždějí, je to ideální místo — vlakové i autobusové nádraží jsou vzdálené do deseti minut pěšky. Ať už míříte do Brna nebo kamkoli jinam, dopravní dostupnost je tu opravdu výborná. K tomu prostorná koupelna, technická místnost a vlastní plynový kotel, takže si sami určujete, kdy a jak topíte i ohříváte vodu. Celý dům je klasický podsklepený cihlový objekt ze 70. let, se třemi podlažími, napojený na veřejný vodovod, kanalizaci, elektřinu i plyn. Okolí domu je klidné, bez rušivých vlivů, se spoustou zeleně a pohodovým sousedstvím. Pokud hledáte v Blansku byt s pořádným prostorem, dobrou adresou a atmosférou rodinného bydlení, tenhle mezonet na Mahenové si rozhodně zaslouží vaši pozornost. Zavolejte mi, domluvíme si prohlídku — rád vám ho osobně ukážu.

