Prodej - dům/vila, 200 m²
Rodinný dům 157m, pozemek 666, Bítov
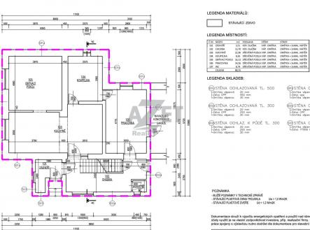
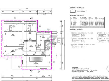
Nabízíme k prodeji samostatně stojící rodinný dům v klidné obci Bítov, okres Nový Jičín. Dům je dvoupodlažní a podsklepený, celková podlahová plocha činí cca 200 m, zastavěná plocha 155 m a pozemek má výměru 666 m. Nemovitost prošla kompletní rekonstrukcí v podobě nové plechové střešní krytiny SATJAM, plastových oken značky REHAU(trojsklo), elektrorozvody, omítky a podlahy. O vytápění domu a ohřev vody se stará automatický kotel na uhlí značky OPOP s akumulační nádrží. V přízemí vás přivítá světlá kuchyně s jídelnou propojená s obývacím pokojem, moderní koupelna s vanou a sprchovým koutem, praktická technická místnost a kotelna s přímým vstupem do garáže. Ve druhém nadzemním podlaží jsou tři neprůchozí pokoje a toaleta. Dům nabízí útulné a klidné bydlení v malebné obci obklopené přírodou a je ideální volbou pro rodinu s dětmi, která hledá klidné bydlení s dobrou dostupností do okolních měst. Pro více informací a případnou prohlídku kontaktujte makléře.


