Prodej - pozemek pro bydlení, 1 071 m²
Nabízím ke koupi pozemek se základovou deskou, stavebním povolením a projektem v obci Biskupice
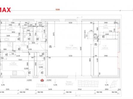
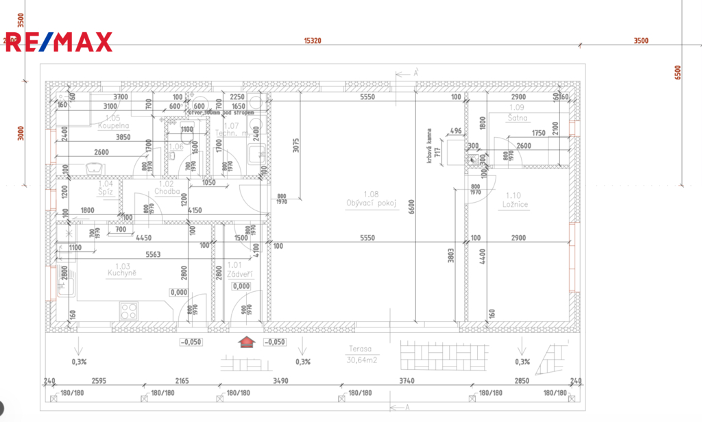
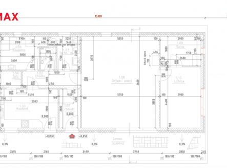
Nabízím ke koupi zasíťovaný pozemek o celkové výměře 1071 m² v malebné obci Biskupice nedaleko Jevíčka. Pozemek tvoří tři samostatné parcely. Součástí prodeje je stavební povolení včetně projektové dokumentace. Na pozemek vede mostek přes místní potok s hlubším korytem. Dle vyjádření obce byl mostek vybudován při stavbě přilehlé silnice a podle informací z SOA Litomyšl k němu nejsou evidováni žádní vlastníci. Na jedné z parcel je již vybudována základová deska pro plánovaný záměr rodinného domu - dřevostavbu o zastavěné ploše 93 m². Dům bude pravidelného půdorysného tvaru obdélníku o rozměrech 15,32 x 9,22 m, zastřešený bude sedlovou střechou s valbami s výškou hřebene 5,00 m od úrovně podlahy domu nad obytnou částí a pultovou střešní konstrukcí nad terasou. Dům bude připojen na elektřinu, vodovod a splaškovou kanalizaci stávajícími přípojkami původního domu č.p. 21, který byl zbourán. Vytápění je řešeno tepelným čerpadlem vzduch/voda a krbovými kamny. Dešťové vody z domu budou svedeny do retenčních nádrží s přepadem do vsaku na pozemku stavebníka. Opěrná zeď: Nová opěrná zeď z betonových tvárnic ztraceného bednění tl. 300 a 400 mm. Zeď bude délky 19,032 m a maximální výšky 2,5 m od upraveného terénu. Založena bude na betonovém základu. Zahradní domek: Novostavba dřevěného skladu nářadí a zahradní techniky. Sklad bude pravidelného půdorysného tvaru obdélníku o rozměrech 5 x 5,635 m, zastřešen bude sedlovou střešní konstrukcí s výškou hřebene 3,2 m od úrovně podlahy skladu. Kryté parkovací stání: Novostavba přístřešku pro kryté stání osobního automobilu. Přístřešek bude přistavěný k sousednímu objektu zahradního domku, bude dřevěné konstrukce půdorysných rozměrů 3,5 x 5,5 mm neopláštěný a zastřešený pultovou střešní konstrukcí maximální výšky cca 2,6 m. Dispozici a využití jednotlivých místností je možné upravit dle potřeb budoucího majitele. Dům je situován na hranici svahu, čímž se maximálně využívá plocha před domem. Lokalita: Obec Biskupice se nachází v okrese Svitavy v Pardubickém kraji, v severozápadní části historické Moravy. Leží přibližně 330 m n. m. v úrodné oblasti zvané Malá Haná, rozprostírající se mezi západní částí Drahanské vrchoviny a východním úpatím Českomoravské vrchoviny. Biskupice leží 17 km jižně od Moravské Třebové, 20 km severně od Boskovic a 4 km východně od Jevíčka. Vzdálenost do Brna činí 63 km, do Olomouce 52 km a k hranicím s Polskem přibližně 80 km. První písemná zmínka o obci pochází již z roku 1262, kdy byly Biskupice majetkem olomouckého biskupství. V obci má historickou tradici palírna ovoce. Již roku 1716 dala vrchnost postavit poblíž zámku panskou palírnu. Na tento fakt každoročně navazuje festival slivovice nazvaný Biskupický kaléšek. V centru obce se nachází zámek postavený roku 1713 na místě původní tvrze, které je dnes v soukromých rukou. Prodávající si vyhrazuje právo vybrat kupujícího na základě jím zvolených kritérií.

