Prodej - dům/vila, 175 m²
Prodej RD 4+kk, garáž, pozemek 677 m2, Bílina - Na Výsluní
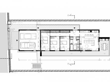
Poslední dům z unikátního projektu v Bílině - Na Výsluní. Představujeme Vám rodinný dům o užitné ploše 175 m2, z čehož čistá obytná plocha činí 97 m2, garáž pro dva automobily o velikosti 36.8 m2 a terasa 41.3 m2. Poslední dům z tohoto projektu je ve fázi výstavby a termín dokončení je stanoven první kvartál roku 2026. Jedná se o rodinný dům obdélníkového tvaru. Objekt je přízemní nepodsklepený a má plochou tzv. zelenou střechu. Sestává se ze dvou částí, a to z garáže, která je založena na základových pasech a z obytné části, která je založena na ocelovém rámu. Ocelový rám podpírá obytnou část a plní funkci základové desky. Tento rám je podepřen čtyřmi ocelovými vzpěrami a spolu s obytnou částí je nad terénem, který se od styku garáže a obytné části svažuje. Na podélné severní straně objektu je vstup do garáže a do obytné části, resp. do spojovací chodby. Před hlavním vstupem je vytvořeno zastřešené závětří. Obytné místnosti jsou orientovány na jih a západ. Z obytných místností jsou zřízeny vstupy prosklenými dveřmi na dřevěnou terasu, která je souběžná s jižní stranou objektu (jižní terasa). U východní strany objektu je také terasa (východní terasa), která je přístupná z obývací kuchyně. Terasa tvoří písmeno L. Další terasa je zřízena na severní straně objektu a je prodloužením chodníku podél severní strany garáže a zajišťuje přístup k hlavnímu vchodu do objektu. Jak je již výše zmíněno, objekt je zastřešen plochou tzv. zelenou střechou, kterou uzavírá atika. Střecha zastřešuje jak garáž, tak i obytnou část a terasu. Nepromarněte poslední šanci vlastnit tento architektonicky velmi zajímavý dům a domluvte si prohlídku. Cena je za dokončený rodinný dům včetně kuchyňské linky bez spotřebičů.


