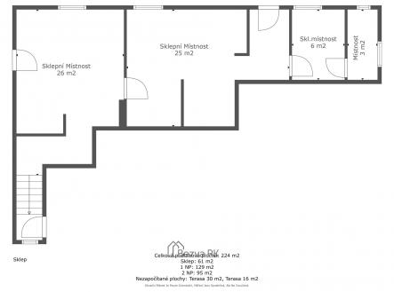
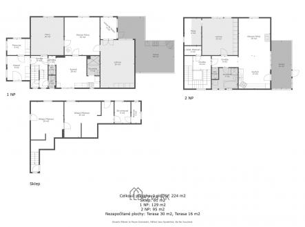
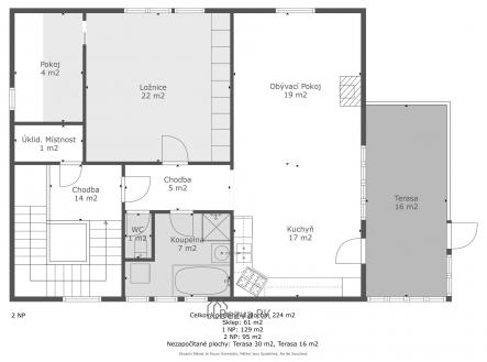
Prodej - dům/vila, 224 m²
Prodej rodinného domu 6+2 s terasou a výhledem – Beroun, Na Černém vršku
Nabízíme k prodeji prostorný, zděný rodinný dům s velkou terasou a nádherným výhledem na okolní krajinu a řeku Berounku. Dům se nachází v žádané a klidné lokalitě Na Černém vršku v Berouně, která je velmi oblíbená pro kombinaci soukromí, přírody a přitom skvělé dostupnosti do centra města i do Prahy. Dům byl postaven v 80. letech a je ve velmi dobrém, udržovaném stavu. Celková podlahová plocha činí 224 m² a nachází se na pozemku o rozloze 542 m². !!! Značnou výhodou této nemovitosti je velké množství samostatných prostor sloužících jako garáže a autodílna. Tyto prostory je možné odděleně prodat, což nabízí jedinečnou příležitost získat finanční prostředky na modernizaci a rekonstrukci samotného domu.!!! I v případě prodeje by stále zůstala součástí domu garáž pro min 2 vozy. Dispozice domu: Přízemí: bytová jednotka 4+1 s kuchyní, obývacím pokojem, třemi ložnicemi, koupelnou a WC 1. patro: bytová jednotka 2+1 s kuchyní, dvěma pokoji, koupelnou a WC V každém podlaží je vlastní koupelna a toaleta, což nabízí možnost dvougeneračního bydlení nebo kombinace bydlení a podnikání Hlavní výhody: Velká terasa s panoramatickým výhledem na Berounku a okolí Bazén se solárním ohřevem Dvojgaráž + autodílna+další pracovní či úložné prostory+velký sklep Venkovní terasa s kuchyní Zděný zahradní domek Bezbariérový přístup díky domovnímu výtahu Vzrostlé stromy a upravená zahrada poskytující soukromí Dům je napojen na všechny inženýrské sítě – plyn, vodovod, kanalizaci a elektřinu. Vytápění zajišťuje plynový kotel. Lokalita Na Černém vršku je výjimečná svojí polohou – kombinace krásné přírody, výhledu a zároveň vynikající dostupnosti (centrum Berouna, nájezd na D5, vlak i veškeré služby v dosahu). Vhodné jak pro klidné rodinné bydlení, tak pro propojení bydlení s podnikáním. Okolní zástavbu tvoří poze vily podobného charakteru. Pro více informací nebo domluvení prohlídky mě prosím neváhejte kontaktovat. V případě potřeby financování hypotečním úvěrem Vám samozřejmě velmi ráda pomohu.


