Prodej bytu, 3+kk, 115 m²
Jedinečný byt se dvěma terasami, zděným skladem a garážovým stáním
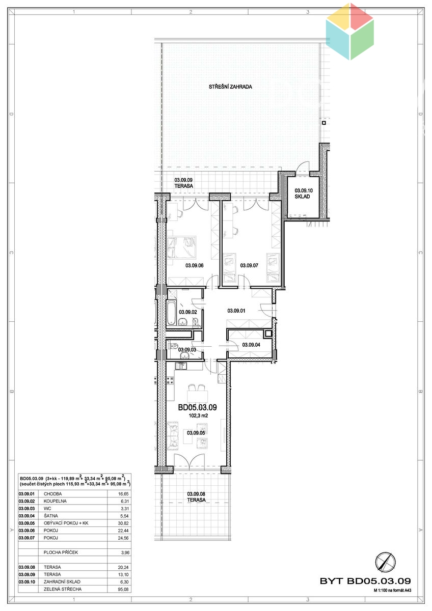
Máme pro Vás k prodeji novotou vonící byt 3+kk o luxusní výměře 115 m2. Nad ostatními nabídkami vyniká tím, že má zelenou terasu s vysázenými sukulenty a vydlážděným prostorem pro zahradní nábytek. Z terasy je přístup do praktického zahradního zděného skladu. Navíc k bytu patří ještě druhá terasa, celkem tak máte cca 120 m2 venkovního prostoru k osobnímu užívání. A pozor - v ceně je už zahrnuta sklepní koje a také garážové stání v suterénu domu. Tento jedinečný byt s výhodami rodinného domu byl právě kolaudován. Nachází se v novém bytovém domě v ul. Nepilova v Berouně. V bytě i v okolí domu finišují poslední drobné úpravy. Architekt byt navrhl na celou šířku domu, získáte tím terasu orientovanou na severozápad a druhou na jihovýchod a můžete si tak svobodně vybírat, jestli se chcete slunit nebo skrýt do stínu. Obzvláště jižní terasa je velmi slunečná a soukromí zajišťuje horní balkon, který terasu částečně kryje. Plocha bytu je rozvržena velmi prakticky, v bytě je prostorná chodba, samozřejmostí je šatna, koupelna s toaletou i druhý samostatný záchod. Obě ložnice jsou velmi světlé, s velkými francouzskými okny, mají vstup na terasu. Na druhou terasu je přístup z obývacího pokoje. Byt najdete na 3. NP z celkem 5 NP, dům je bezbariérový, s výtahem, kterým si do svého patra vyjedete přímo z garáží. Tam na Vás čeká vlastní parkovací místo. Další parkovací místo v garáži lze dokoupit za 395.000 Kč. Lokalita "Na Máchovně" je v Berouně velmi oblíbená mladými rodinami. Obchody jsou v pěší vzdálenosti, kousek to máte na autobus MHD i s přímými spoji do Prahy, nájezd na dálnici Praha-Plzeň je 1,5 km daleko, nedaleko je nové koupaliště, velké sportovní centrum Eden, do historického centra města je to procházkou do 20 minut. Nedaleko jsou i mateřské a základní školy, Beroun má skvělou občanskou vybavenost. Přímo v lokalitě se staví státní školka, jsou tu hned dvě dětská hřiště, obchody, i přírodu máte nadosah - z oken se díváte na zelené kopce ohraničující bytovou zástavbu. S financováním Vám případně pomůže náš šikovný hypoteční specialista.


