Prodej - dům/vila, 104 m²
Rodinný dům ve Svatkovicích u Bernartic
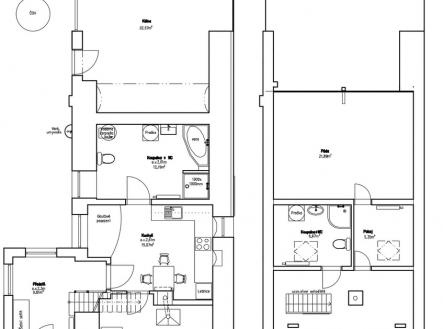
Nabízíme k prodeji zateplený patrový kamenný dům v klidné části obce Svatkovice u Bernartic, který díky skvělé orientaci působí velmi slunně a příjemně. Obec se nachází přibližně 20 km od Písku. Celková plocha pozemku činí 675 m². Dům má dispozici 2+1 a užitnou plochu 104 m² s možností rozšíření o další dva pokoje (jeden v přízemí a druhý v podkroví) a navýšení užitné plochy o dalších cca 54 m². V přízemí se nachází prostorná předsíň, obývací pokoj, kuchyň a koupelna s vanou, sprchovým koutem a WC. V patře je velká obytná místnost, další menší pokoj a druhá koupelna s toaletou. Vytápění celého domu zajišťují krbová kamna na dřevo s výměníkem a rozvodem do radiátorů, která kromě úsporného provozu vytváří i příjemnou atmosféru v obývacím pokoji. Nemovitost je napojena na elektřinu, odpad je řešen domácí ČOV na pozemku a voda je ze studny, přičemž v obci je plánovaná výstavba veřejného vodovodu. Dům je osazen plastovými okny s izolačním dvojsklem, je zateplen (cca 10 cm minerální vaty) a energetická náročnost budovy je ve třídě B, což zaručuje nízké provozní náklady. K domu náleží slunná okrasná zahrada o rozloze 550 m² s prostorným altánkem s krbem (cca 6,5 × 3,6 m) a bazénem, která je díky své poloze a okolnímu krytí velmi soukromá – působí „uzavřeně“ ze všech stran a nabízí tak ideální místo pro nerušený relax, rodinné posezení i zázemí pro volný čas. Parkování je možné před domem i po vjezdu velkou bránou na pozemek. Velkou výhodou je právě potenciál budoucího rozšíření – v obou podlažích lze vytvořit další pokoje (orientačně až cca 54 m²). K dispozici máme i návrhy úprav dispozice a 3D vizualizaci, které ještě více propojí bydlení se zahradou a posunou nemovitost směrem k nadčasovému modernímu stylu. V případě zájmu o bližší informace či prohlídku nás neváhejte kontaktovat.


